Verkocht onder voorbehoud
Te Koop Beleggingsobject met Nieuwbouwplan
Informatie Weerenweg 33 en Venenweg 69 tot en met 79 @Zwanenburg
Een uitstekend beleggingsobject bestaande uit twee bedrijfsverzamelgebouwen met stabiele huurinkomsten én een nieuwbouwplan op de Weerenweg 33 met compleet verleende vergunning
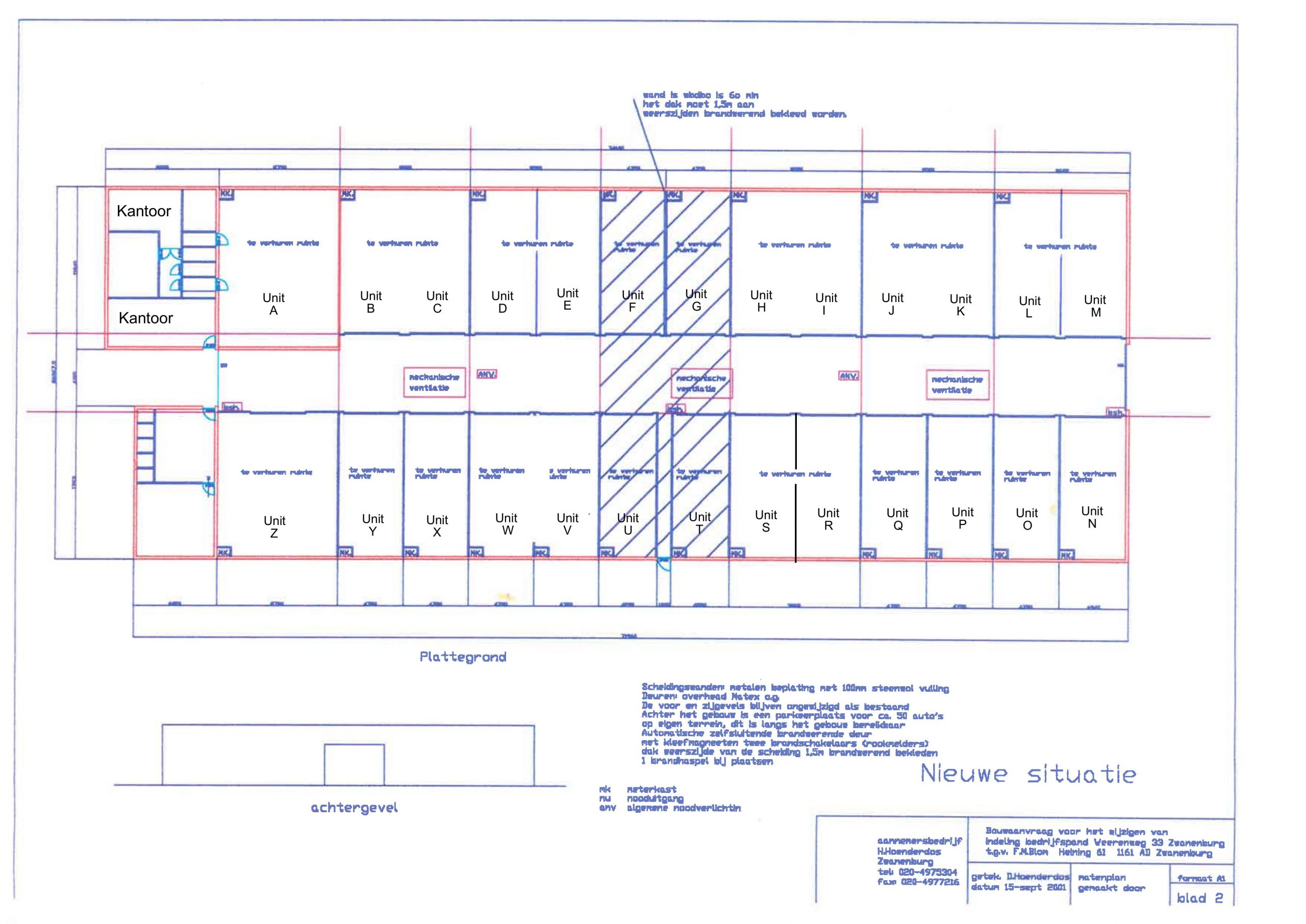
De Weerenweg 33 is een bedrijfsverzamelgebouw met:
– 14 units van circa 45 m²
– 4 units van circa 90 m²
– 1 unit van circa 80 m²
– 1 unit van circa 150 m²
– 1 unit van circa 85 m²
– 1 unit van circa 90 m² (kantoorruimte)
Bijzonderheden:
Weerenweg 33
– Bouwjaar 1962
– Totaal gebruiksoppervlakte circa 1400 m²
– Kadastrale grootte 3.015 m²
– Eigen grond Haarlemmermeer A 10606
De Veneweg 69 tot en met 79 zijn zes verhuurde units op een rij van circa 142 m² per unit verdeeld over twee bouwlagen van circa 71 m² met elk parkeergelegenheid voor de units.
Bijzonderheden:
Venenweg 69 tot en met 79
– Bouwjaar 2008
– Totaal gebruiksoppervlakte circa 840 m²
– Kadastrale grootte 503 m²
– Eigen grond Haarlemmermeer A 10603
Verhuurstatus
Beide locaties zijn volledig verhuurd. De huurcontracten zijn in principe jaarcontracten, die telkens stilzwijgend worden verlengd. Diverse huurders zijn al meer dan 20 jaar op deze locaties gevestigd, bezetting is vrijwel continue 100%.
De gespecificeerde huurgegevens en huurovereenkomsten zijn niet digitaal, maar zullen voor geïnteresseerden, desgewenst kunnen worden ingezien
Huurprijsaanpassingen:
De meeste objecten worden jaarlijks gewijzigd op basis van de wijziging van het kalenderjaarprijsindexcijfer volgens de consumentenprijsindex (CPI), reeks alle huishoudens, op de meest recente tijdsbasis vastgesteld en gepubliceerd door het Centraal Bureau voor de Statistiek (CBS).
Vergund Nieuwbouwplan
Op het perceel van de Weerenweg 33 is een compleet verleende vergunning aanwezig voor de bouw van 12 units op de begane grond en verdieping en in theorie zou je morgen kunnen beginnen met bouwen. De vergunning voor het slopen van de huidige opstallen dient nog wel aangevraagd te worden.
Het betreft 3 units van circa 100 m² BVO op de begane grond en circa 100 m² BVO op de verdieping
Het betreft 7 units van circa 150 m² BVO op de begane grond en circa 150 m² BVO op de verdieping
Het betreft 2 units van circa 113 m² BVO op de begane grond en circa 113 m² BVO op de verdieping
Ligging en bereikbaarheid
De objecten aan de Weerenweg 33 en Venenweg 69 tot en met 79 zijn gelegen op een gunstige en goed bereikbare locatie op het bedrijventerrein “De Weeren” aan de rand van Zwanenburg. Dit bedrijventerrein is uitstekend gesitueerd tussen Amsterdam, Haarlem en Schiphol, op korte afstand van de snelwegen A9, A5 en A10, de N232 (Schipholweg),
Het openbaar vervoer is voldoende aanwezig met op loopafstand bushaltes met verbindingen naar onder meer Station Halfweg-Zwanenburg en Amsterdam Sloterdijk.
De bedrijfsobjecten bevinden zich in een goed functionerend en representatief bedrijventerrein met een mix van lokale ondernemers, kleinschalige productiebedrijven en opslag-/distributieruimten. In de directe omgeving zijn diverse voorzieningen aanwezig, waaronder horeca, detailhandel en tankstations.
Kortom: een centrale en praktische locatie met uitstekende bereikbaarheid, zowel per auto als met het openbaar vervoer. Ideaal voor bedrijven die actief zijn in de regio Groot-Amsterdam en de Haarlemmermeer.
Opleveringsniveau:
Het object wordt in de huidige en verhuurde staat opgeleverd.
VVE
Niet van toepassing
Onderhoud:
De object verkeren in goede staat van onderhoud.
Koopsom:
De koopsom van het geheel bedraagt € 4.000.000,– en voor zover bekend is er geen BTW van toepassing, een en ander onder voorbehoud;
Indicatie huidige huuropbrengst circa € 200.000,– per jaar
Bestemming:
Conform het vigerende bestemmingsplan “Zwanenburg West en De Weeren” d.d. 06-06-2019 kent het object de enkelbestemming ‘Bedrijventerrein’ met de functieaanduiding “bedrijf t/m categorie 3.2”.
Uit het nieuwbouwplan kwam nog de volgende bestemming naar voren: “Bedrijf arbeidsintensief/bezoekersextensief (industrie, laboratorium, werkplaats) 2,1 2,35 2,6 100 2,10 “.
Let Op! Voor exacte voorwaarden en overige invullingen of een uitgebreide bestemmingsomschrijving verwijzen wij u naar de website van het Omgevingsloket te bereiken via deze link.
Vergunningen, verbouwingen, aan- en uitbouwen
Verkoper heeft alle bij hem aanwezige, aan hem bekende gegevens en informatie omtrent aan- en uitbouwen, verbouwingen en/of bouwvergunning ter beschikking gesteld, maar kan niet instaan voor de volledigheid en/of juistheid van deze informatie. Kopers wordt geadviseerd altijd zelf onderzoek te doen naar de volledigheid en/of juistheid van deze informatie. Indien door verkoper, dan wel door makelaar verkoper geen (bouw)tekeningen en/of vergunningen bij de overheidsinstanties zijn opgevraagd, dan wordt een koper geadviseerd dit zelf te doen. Dit om een compleet beeld te vormen over de legaliteit van eventuele bouwkundige aanpassingen en veranderingen.
Bouwkwaliteit
-Tenzij de verkoper van dit object de kwaliteit ervan heeft gegarandeerd, staat hij niet in voor de funderingen, de vloeren, de muren, de plafonds, eventuele verbouwingen, de leidingen voor de elektriciteit, water en gas, de riolering, de afwezigheid van doorslaand of optrekkend vocht en de afwezigheid van enig ongedierte c.q. schimmels (zoals bijvoorbeeld houtworm, boktor, zwam etc.). Bouwkundige kwaliteits-gebreken worden geacht niet belemmerend te werken op hetgeen in de op te maken koopakte omschreven woongebruik.
– In de koopakte zal de onderstaande, bij de verkoopvoorwaarde bouwkwaliteitclausule worden opgenomen;
Milieu
– Er is een Verkennend bodemonderzoek aanwezig van 15 december 2023
– Dit is voor de serieus geïnteresseerde beschikbaar
Asbest
– Verkoper is niet bekend dat er in de opstallen asbest of asbesthoudende materialen aanwezig zijn. Dit is overigens geen garantie dat er helemaal geen asbest of asbesthoudende materialen aanwezig kan of kunnen zijn;
– In de koopakte zal de onderstaande, bij de verkoopvoorwaarde asbestclausule worden opgenomen;
Meetinstructie
– Het object is opgemeten conform de branchebrede meetinstructie. De Meetinstructie is bedoeld om een meer eenduidige manier van meten toe te passen voor het geven van een indicatie van de oppervlakten. De Meetinstructie sluit verschillen in meetuitkomsten niet volledig uit, door bijvoorbeeld interpretatieverschillen, afrondingen of beperkingen bij het uitvoeren van de meting.
– In de koopakte zal de onderstaande, bij de verkoopvoorwaarde Toelichting meetinstructie worden opgenomen;
Gegevens over grond:
Eigendom
– De objecten liggen op eigen grond.
Kadastrale gegevens Weerenweg 33:
Kadastrale gemeente: Haarlemmermeer
Sectie: A Nummer: 10491
Groot: 3015 m²
Let Op! Het perceel Weerenweg 33 loopt door tot en met de parkeerplaatsen van de Venenweg 69 tot en met 79. Deze dienen desgewenst nog afgesplitst te worden en worden toegevoegd aan het kadastrale perceel van de Venenweg 69 tot en met 79.
Kadastrale gegevens Venenweg 69 tot en met 79:
Kadastrale gemeente: Haarlemmermeer
Sectie: A Nummer: 10603
Groot: 503 m²
Erfdienstbaarheid Kwalitatieve verplichting Venenweg 69 tot en met 79:
” Met betrekking tot bekende erfdienstbaarheden, kwalitatieve bedingen en/of bijzondere verplichtingen wordt verwezen naar:
- voormelde titel van aankomst, waarin onder meer woordelijk staat vermeld als volgt:
“Met betrekking tot het verkochte zijn verkoper geen andere erfdienstbaarheden of verplichtingen bekend dan voorkomende in een vorige titel van aankomst, zijnde een akte van verkoop en koop op twintig juni negentienhonderd een en zestig verleden voor notaris A. Wintgens voornoemd, overgeschreven ten hypotheekkantore te Haarlem op drie juli daaraanvolgend in deel 2378 nummer 10, woordelijk luidend:
“10. De Gemeente Haarlemmermeer zal voor haar rekening op het industrieterrein, waarvan het bij deze verkochte deel uitmaakt, een hoogspanningskabel aanleggen en een transformatorhuisje bouwen.
De koopster wordt, zonder dat zij deswege enige bijdrage behoeft te betalen in de kosten van aanleg van de hoogspanningskabel en het transformatorhuisje, het recht verleend om van deze hoogspanningskabel of van het transformatorhuisje, afhankelijk van de afstand van het verkochte tot het transformatorhuisje en de voor het bedrijf van koopster benodigde capaciteit, een en ander te beoordeling aan het provinciaal electriciteitsbedrijf van Noord-Holland, gebruik te maken.”
Afspraken
U kunt ons mailen voor een afspraak voor een bezichtiging. Onze bezichtigingen proberen we zoveel als mogelijk voor een bepaalde tijd in te plannen. We verzoeken u dan ook op tijd te komen en de geplande tijd niet te overschrijden als er meerdere bezichtigingen ingepland zijn.
Hoe een bod uit te brengen:
– Nadat u de informatie heeft bestudeerd maakt u ons uw interesse om te bieden via een e-mail kenbaar;
– Wij zullen u alle aanwezige, door verkoper ter beschikking gestelde relevante gegevens toezenden, of via een link ter beschikking stellen;
– Nadat u de informatie heeft bestudeerd kunt u uw interesse kenbaar maken door een bieding neer te leggen met eventuele voorwaarden. Bieden kan alleen via een e-mail naar info@onkenhoutmakelaars.nl ;
– Het voorstel zullen we met onze opdrachtgever bespreken en u zo spoedig mogelijk een terugkoppeling geven.
Bijzondere en algemene bepalingen op deze verkoop van toepassing:
– Deze brochure is door ons kantoor met de nodige zorgvuldigheid samengesteld aan de hand van de beschikbare gegevens en met de door de verkoper aan ons ter hand gestelde gegevens en tekeningen. Onzerzijds wordt echter geen enkele aansprakelijkheid aanvaard voor enige onvolledigheid, onjuistheid of anderszins, dan wel de gevolgen daarvan. Alle opgegeven maten en oppervlakten zijn indicatief.
– Op deze verkoop zijn de verkoopvoorwaarden van toepassing. Deze zijn op onze website bij het object vermeld onder het tabblad algemene informatie Ook de daar beschreven bijzondere clausules zijn van toepassing.
– De hier genoemde maten zijn indicatief, waardoor er ook geen rechten aan ontleend kunnen worden
– Op deze verkoop is ook de disclaimer beschreven op onze website van toepassing;
– Tevens verwijzen we met betrekking tot deze verkoop naar de privacyverklaring beschreven op onze website.
- Eigen grond
Zwanenburg
Zwanenburg is een dorp in de gemeente Haarlemmermeer, in de Nederlandse provincie Noord-Holland met (in 2011) 7.570 inwoners.
Zwanenburg vormt feitelijk een dubbeldorp met Halfweg, dat tot de gemeente Haarlemmerliede en Spaarnwoude behoort. Het dorp Zwanenburg is in 1913 vernoemd naar het huis Swanenburg in Halfweg, dat eertijds dienst deed als gemeenlandshuis van Rijnland. Later werd hierin de suikerfabriek Holland, nog later CSM, gevestigd. De Ringvaart van de Haarlemmermeerpolder scheidt de beide dorpen, die door enkele bruggen worden verbonden. Dit zijn: de brug Halfweg (eigenlijk naamloos) die de dorpskernen verbindt (tussen de Dennenlaan en de Oranje Nassaustraat), de Weerenbrug (tussen de Weerenweg in Zwanenburg West en de Haarlemmerstraatweg) en de Bietenbrug (fietsbrug van de Domineeslaan naar Sugar City).
De volgende wijken worden onderscheiden: Zwanenburg Zuid, Zwanenburg Noordoost en Zwanenburg West.
Zwanenburg dankt zijn bestaan aan de vestiging van landarbeiders na de drooglegging van Haarlemmermeer. Deze mensen bouwden hun huizen onderaan de dijk op de goedkopere gronden. De ontwikkeling van Zwanenburg is niet los te zien van die van Halfweg. In de jaren na de Eerste Wereldoorlog vond er een uitbreiding plaats van het dorp, en in de jaren 60 werd Zwanenburg nog verder uitgebreid.[1]
Zwanenburg ligt onder de aanvliegroute van de Zwanenburgbaan en Polderbaan van de Luchthaven Schiphol.
Aan de zuidkant van het dorp is een park van 35 hectare aangelegd, tussen de Ringvaart (Lijnderdijk), Westrandweg, IJweg (N519) en Olmenlaan. Het gebied van het voormalige buitenzwembad vormt de entree vanaf de Lijnderdijk. Park Zwanenburg werd in 2010 geopend.
Bron: Wikipedia






























































