Te koop Vraagprijs € 925.000 k.k.
Vrijstaand wonen aan het water tegenover het Amsterdamse bos
Deze vrijstaande dijkvilla aan de Nieuwemeerdijk 377 in Badhoevedorp ligt op een grote kavel van 637 m² opstalgrond, heeft een steiger op 52 m² eigen berm en water in de ringvaart met stroomaansluiting en een 44 meter diepe tuin op het westen.
Deze zomer kan je al vanaf je eigen steiger gaan varen op de Nieuwe Meer of de Westeinder plassen. Of wat dacht je van recreëren in je eigen bos en park achter het huis. De woning is modern verbouwd en fijn ingedeeld. Parkeren doe je hier op eigen terrein.
Op de begane heb je een entree met tochtportaal, ruime hal met nieuw toilet en een living van 43 m² verdeeld over de doorzon woonkamer met erker, deur naar het terras en open doorgang naar de aansluitende bibliotheek/study in de voormalige keuken.
In het souterrain van ruim 26 m² is een hele gezellige en uitgebreide keuken (periode 2024) met inbouwapparatuur en een eetkamer met openslaande deuren naar het terras en tuin gerealiseerd.
Op de eerste etage is aan de voorkant een slaapkamer van 13 m² met balkon en zicht op het water en het bos. Ook de luxe badkamer uit de periode 2024 met ligbad, inloopdouche, toilet en een groot wastafelmeubel zit voor. De twee andere slaapkamers van 12 en 5 m² hebben zicht op de oneindige boomrijke tuin.
De tweede zolderetage van circa 12 m² met twee dakramen is zeer geschikt als gezellige extra kinderkamer.
Deze woning (bouwperiode 1950) is gelegen op een kavel van circa 637 m² opstal grond en beschikt over circa 136 m² gebruiksoppervlak wonen, dit is exclusief de externe bergruimte, zoals de (in de tuin gelegen) schuren van circa 6 en circa 6 m² en exclusief de gebouw gebonden buitenruimte, zoals het dakterras van circa 21 m² en het balkon van circa 2 m² en heeft circa 465 m³ inhoud (zo goed als mogelijk opgemeten volgens de branche brede meetinstructies van de NVM waarvoor de Nen-2580 norm de basis vormt). Tevens is er bij de woning een perceel berm en water van circa 54 m² aanwezig met een aanlegsteiger. Deze maten zijn indicatief. Voor deze woning is het Energielabel C afgegeven.
Indeling
Parterre:
Entree met meterkast, hal met verwarmd toilet, trapopgang naar de 1e verdieping en deur naar de woonkamer van circa 31 m² met erker, open haard en airconditioning. Vanuit de hal en de woonkamer is er toegang tot de bibliotheek/studie van circa 12 m² met trap naar het souterrain en met deur naar het op het westen gelegen dakterras van circa 21 m² voorzien van een groot zonnescherm.
1e Verdieping:
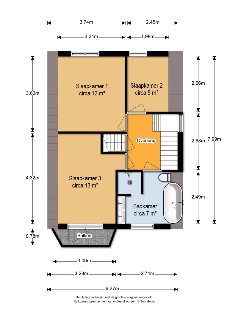
Overloop met deuren naar alle vertrekken. Badkamer, vernieuwd in 2023, van circa 7 m² met ligbad, inloopdouche, dubbele wastafel met meubel en toilet. Slaapkamer aan de voorzijde van circa 13 m² met airconditioning en openslaande deuren naar het op het oosten gelegen balkon. Twee slaapkamers aan de achterzijde van circa 12 m² en circa 5 m² met bergruimtes achter de knieschotten. In het midden van de woning is de vaste trap naar de 2e verdieping.
2e Verdieping:
Zolderkamer van circa 12 m² met 2 velux dakramen, bergruimte achter de knieschotten en aansluitingen voor wasmachine en droger.
Souterrain:
Open woonkeuken van circa 12 m² met keukenblok in U-opstelling met diverse inbouwapparatuur, vernieuwd in 2023, en een eet/tuinkamer van circa 15 m² met openslaande deuren naar de achtertuin met een veranda met daarop aangesloten een hardhouten terras. De cv-opstelling is geplaatst in een kast onder de trap.
Tuin:
De riante achtertuin is gelegen op het westen, circa 42 meter diep en circa 11 meter breed en heeft drie niveaus. Het eerst niveau is deels met een betonnen vloer (veranda gedeelte) en deels een hardhouten terras. Het iets lager gelegen tweede niveau is voorzien van een terras met klinkers. En het nog iets lager gelegen derde niveau is voorzien van gras, twee vrijstaande houten bergingen met openslaande deuren, diverse fruitbomen en vaste planten. Tevens is er een achterom aanwezig.
De op het oosten gelegen voortuin is circa 11 meter breed en circa 2,7 meter diep en heeft een klinkerpad naar de voordeur, verder zijn er delen met grind en perken met vaste planten.
De zijtuin heeft een oprit voor parkeren op eigen terrein.
Steiger:
Aan de Ringvaart, ligt een bij de woning horend perceel berm-water van circa 5 meter diep en circa 11 meter breed met een houten aanlegsteiger. Bij de steiger is een elektriciteitskast geplaatst met meerdere stroomaansluitingen inclusief krachtstroom (o.a. voor een elektrische boot).
Ligging:
De woning ligt op een unieke locatie aan de karakteristieke dijk langs de Ringvaart waardoor het o.a. mogelijk is om via het Nieuwe Meer naar het Grachtenstelsel van Amsterdam te varen. Daarnaast zijn ook de Kagerplassen en de Westeinderplassen via de Ringvaart bereikbaar.
Een locatie met een prachtig, landelijk gevoel, vrij uitzicht én alle stedelijke voorzieningen binnen handbereik.
Het centrum van Badhoevedorp met diverse supermarkten, winkels, scholen, kinderopvang, sportfaciliteiten en horecagelegenheden ligt op korte afstand en is eenvoudig per fiets bereikbaar.
Er kan worden geparkeerd op eigen terrein en daarnaast is er parkeergelegenheid voor de deur.
De bereikbaarheid is uitstekend door de gunstige ligging ten opzicht van de snelwegen. De A9, A10, zijn binnen enkele minuten te bereiken, maar ook de A4 en A5 liggen in de directe nabijheid. Hierdoor zijn steden als Amstelveen, Amsterdam, Haarlem en ook Schiphol goed bereikbaar.
Wat deze locatie extra bijzonder maakt, is de combinatie van rust, ruimte en water. Wonen aan de Nieuwemeerdijk betekent genieten van een groene, waterrijke omgeving met volop mogelijkheden voor wandelen, fietsen en recreatie, terwijl de dynamiek van de stad altijd dichtbij is.
Wilt je het hele jaar het ultieme vakantiegevoel in dit heerlijke huis aan de Nieuwemeerdijk 377 @Badhoevedorp?
In deze solide dijkwoning aan het water vergeet je de alledaagse sores. De ligging aan het water met eigen steiger tegenover het Amsterdamse bos gebruik je om te zitten of te gaan varen. En de vier heerlijke verdiepingen zijn zo gezellig en sfeervol, een vakantiehuis is er niets bij. En in de geweldige bosrijke tuin waan je jezelf op de Veluwe. En dan is de staat van onderhoud ook nog goed evenals de gunstige ligging tussen Badhoevedorp, Amsterdam en Amstelveen, zowel per fiets, boot of met de auto.
Kom je sfeer proeven?
– Neem dan contact op met je eigen MVA- of NVM-makelaar
– Of doe dit direct online via de knop “Plan Afspraak” op onze site
– Of kies de knop “Vraag bezichtiging aan” op Funda
Wij laten je deze woning dan heel graag zien!
Afspraken
Onze bezichtigingen proberen we zoveel als mogelijk voor een bepaalde tijd in te plannen en zijn vrijwel altijd individueel. We verzoeken je dan ook op tijd te komen en de geplande tijd niet te overschrijden als er meerdere bezichtigingen ingepland zijn.
Mocht je verhinderd zijn dan vernemen we dat graag ruim van tevoren.
Bereid je goed voor op de bezichtiging. Alle relevante informatie is te vinden op onze website. Zo staat er onder het tabblad ‘bijzonderheden’ aanvullende informatie die niet op Funda wordt vermeld.
Wij adviseren je ook:
-de foto’s goed te bekijken
-de plattegronden door te nemen
-een vragenlijstje mee te nemen naar de bezichtiging
Wij kijken ernaar uit jou te zien!
Op deze transactie zijn onze (verkoop)voorwaarden, algemene voorwaarden en de voorwaarden van de NVM van toepassing, zie onze site.
Bijzonderheden:
– Bouwjaar 1950
– Type vrijstaande dijkwoning
– Gebruiksoppervlak wonen 136 m²
– Voortdurend recht van opstal tot 2054
– De retributie bedraagt € 859,95 per jaar.
– Oplevering in overleg, kan snel
– Funderingsrisico: Niet hoog (A, B, C) (Bron Brainbay)
– De volgende clausules zijn van toepassing en zullen in de koopakte worden opgenomen:
Bouwkwaliteit / Milieuclausule / Asbestclausule / Energielabel /Toelichtingsclausule Meetinstructie / Niet-Zelfbewoningsclausule, zie ook de Verkoopvoorwaarden en adviezen Onkenhout Makelaars 2026
– Bieden gaat via een digitaal biedlogboek (meer info bij bijzonderheden op onze eigen site)
– De koop van een woning (door een consument) is pas gesloten (rechtsgeldig) als de koopakte door zowel de koper als de verkoper is getekend
Onderstaand de bij ons bekende bijzonderheden van deze woning door de verkoper bij aanvang verkoop verstrekt:
Verwarming en warmwater
- De woning wordt verwarmd via een Remeha Avanta CV-ketel
- Het apparaat is van omstreeks 2007
- Het warme water van deze woning komt via deze combiketel en een Quooker in de keuken
Isolatie
- Voor zover bekend is de woning grotendeels voorzien van kunststof kozijnen, ramen en deuren
- Voor zover bekend is de woning grotendeels voorzien van dubbel HR glas
- Voor zover bekend is de woning voorzien van gevelisolatie
- Voor zover bekend is de woning voorzien van vloerisolatie
- Voor zover bekend is de woning voorzien van kap
- De woning is geïsoleerd, volgens de destijds bij de nieuwbouw geldende normen
Installaties
- Er is een moderne groepenkast met voldoende groepen en aardlekschakelaars
- In de woning is een tv aansluiting aanwezig
- In de woning is een internetaansluiting aanwezig
- In de woning is een rookmelder aanwezig
- In de woning is een koolmonoxide melder aanwezig
- In de woning zijn airconditionings aanwezig
- In de woning is een mechanische afzuiging aanwezig
- Het riool in de woning functioneert voor zover bekend goed;
- Er is geen informatie bekend over ander grondvochtigheid en/of optrekkend vocht anders dan
gebruikelijk op deze locatie.
- Voor wat betreft de fundering en het casco is bekend dat er bij dit object een fundering op betonnen palen is toegepast.
- Voor deze woning heeft het KCAF (Kennis Centrum Aanpak Funderingsproblematiek) het funderingsrisico ingeschaald op 'Geen hoog risico'. Dat houdt in dat de woning volgens bij KCAF beschikbare data de indicatie A, B of C heeft. Zie ook de disclaimer bij de verkoopvoorwaarden.
Vloerbedekking
- De begane grond is grotendeels voorzien van een whitwash houten vloer
- Het souterrain is voorzien van een houten vloer in visgraatmotief
- De 1e verdieping is grotendeels voorzien van een houten vloer
- De 2e verdieping is grotendeels voorzien van een laminaat vloer
Keuken (2023)
De keuken is onder meer voorzien van:
- een kunststof werkblad
- een enkele spoelbak
- een direct heet-waterkraan
- een vaatwasmachine
- een 4 pits keramische kookplaat met geïntegreerde afzuiging
- een oven
- een magnetron
- een koel-vriescombinatie
Badkamer (2023)
De badkamer is onder meer voorzien van:
- een inloopdouche
- een ligbad
- een dubbele wastafel met meubel
- een zwevend toilet
- een handdoekradiator
- ventilator
- inbouwspots
Wandafwerking
- De wanden zijn grotendeels voorzien van Stucwerk
Overige bijzonderheden
- Ieder jaar dient het slootje achter de achtertuin tot de helft te worden gedregd. De andere helft hoort bij het aan de overkant gelegen perceel.
- Diverse ramen zijn voorzien van zonneschermen.
- Het object is aangesloten op de (openbare) leidingen voor water, verwarming (gas, stadsverwarming en/of WKO), elektriciteit en riool.|
- Het object heeft aansluiting op de infrastructuur voor dataverkeer.
- Het object heeft heden rechtmatig en onbeperkt uitgang op de openbare weg op de wijze als ter plaatse blijkt.
- Het object is uitsluitend gebruikt als woning, verkoper staat niet in voor een gebruik anders dan voormeld gebruik.
Energielabel
- De woning heeft een definitief energielabel C
- Dit label is geldig tot 19-03-2036
- Er is een energielabel volgens de 2021 norm NTA 8800 aanwezig
Asbest
- Verkoper is niet bekend dat er in de woning asbest of asbesthoudende materialen aanwezig zijn behalve dat de riolering deels asbestverdacht is. Dit is overigens geen garantie dat er verder helemaal geen asbest of asbesthoudende materialen in de woning aanwezig kan of kunnen zijn;
- Zie ook de asbestclausule bij de verkoopvoorwaarden;
Vergunningen, verbouwingen, aan- en uitbouwen
Verkoper heeft alle bij hem aanwezige, aan hem bekende gegevens en informatie omtrent aan- en uitbouwen, verbouwingen en/of bouwvergunning ter beschikking gesteld, maar kan niet instaan voor de volledigheid en/of juistheid van deze informatie. Kopers wordt geadviseerd altijd zelf onderzoek te doen naar de volledigheid en/of juistheid van deze informatie. Indien door verkoper, dan wel door makelaar verkoper geen (bouw)tekeningen en/of vergunningen bij de overheidsinstanties zijn opgevraagd, dan wordt een koper geadviseerd dit zelf te doen. Dit om een compleet beeld te vormen over de legaliteit van eventuele bouwkundige aanpassingen en veranderingen.
Bouwtechnisch onderzoek
- Verkoper is niet bekend dat er in de woning bouwkundige gebreken zijn. Voor verkoper is er dan ook geen aanleiding om een bouwtechnische onderzoek te laten uitvoeren. Dit is overigens geen garantie dat er helemaal geen andere bouwtechnische gebreken in de woning aanwezig kunnen zijn;
- Zie ook de clausule bouwkwaliteit bij de verkoopvoorwaarden
Tuin
Achtertuin
- De ligging van de achtertuin is west
- De diepte van de achtertuin is circa 42 meter
- De breedte van de achtertuin is circa 11 meter
- De totale oppervlakte van deze tuin is circa 465 m²
- In de tuin staat een berging
- Deze is circa 2,75 meter breed
- Deze is circa 2,25 meter diep
- De totale oppervlakte van deze ruimte is circa 6 m²
- In de tuin staat een berging
- Deze is circa 2,74 meter breed
- Deze is circa 2,25 meter diep
- De totale oppervlakte van deze ruimte is circa 6 m²
Voortuin
- De ligging van de voortuin is oost
- De diepte van de voortuin is circa 2,7 meter
- De breedte van de voortuin is circa 11 meter
- De totale oppervlakte van deze tuin is circa 29 m²
Zijtuin
- De ligging van de zijtuin is zuid
- De diepte van de zijtuin is circa 15 meter
- De breedte van de zijtuin is circa 2,7 meter
- De totale oppervlakte van deze tuin is circa 43 m²
Genoemde tuinmaten zijn indicatief.
Gegevens over grond:
Kadastrale gegevens perceel woning:
Kadastrale gemeente: Haarlemmermeer
Sectie: H Nummer: 6066
Groot: 637 m²
Kadastrale gegevens perceel berm-water:
Kadastrale gemeente: Haarlemmermeer
Sectie: H Nummer: 11460
Groot: 54 m²
Eigendom
- Het object ligt op het voortdurend recht van opstal van het Hoogheemraadschap van Rijnland.
- De retributie (vergoeding voor dit recht) voor de woning bedraagt € 859,95 per jaar.
- De ingangsdatum van het opstalrecht is 1-12-2004.
- De einddatum van dit recht is 30-11-2054
- De retributie wordt om de 5 jaar geïndexeerd.
- De Algemene opstalvoorwaarden Groot-Haarlemmermeer 2000 zijn van toepassing.
- Indien de woning op erfpacht of op het recht van opstal is gelegen, dient koper er rekening mee te houden, dat bij verkoop over de erfpachtcanon ook overdrachtsbelasting is verschuldigd. De hoogte is afhankelijk van de nog resterende duur. Veelal komt het voor dat voor de berekening van dit gedeelte van de overdrachtsbelasting 17x de canon wordt gehanteerd. Over die uitkomst zal dan overdrachtsbelasting (thans 2%)worden berekend. Overigens wordt bij afgekochte erfpachtcanon de nog resterende looptijd in mindering gebracht.
- De erfpachtcanon is vooralsnog fiscaal aftrekbaar.
Bieden via verplicht biedlogboek:
- Sinds 01 januari 2023 zijn alle makelaars verplicht om bij vrijwel alle verkopen van grondgebonden woningen en appartementen (bestaande bouw) van het biedproces een biedlogboek aan te leggen;
- Dit geldt voor alle biedprocessen (1-op-1 onderhandeling, verkoop bij inschrijving) waarbij de koper en/of verkoper particulier is;
- Onkenhout Makelaars gebruikt hiervoor het biedboek van Eerlijk Bieden;
- In het biedboek staat een aantal vaste gegevens, die geautomatiseerd worden verzameld,
- De biedingen worden anoniem in het biedlogboek geplaatst, zodat het voor externe partijen niet traceerbaar is wie een bieder is.
- Onder meer:
- Het bod (inclusief roerende zaken)
- Eventuele voorbehouden
- Een persoonlijke boodschap van kandidaat koper voor verkoper
- Het tijdstip ontvangst bieding (geautomatiseerd vastgelegd)
- Aan wie is gegund + koopsom
- Op deze manier kunnen bieders achteraf zien waar het uitgebrachte bod in de lijst staat. Het is echter in bijna alle gevallen zo dat de verkoper het beste bod kiest en niet verplicht is het hoogste bod te kiezen. De verkoper behoudt zich het recht van gunning voor en kan dus ook een bod kiezen wat lager is en bijvoorbeeld meer zekerheid biedt of de eventuele toelichting hem meer aanspreekt;
- Het is mogelijk om na het onherroepelijk worden van de koop, dus als alle voorbehouden zijn verlopen, het biedlogboek in te zien. Dit is alleen mogelijk voor direct betrokkenen bij het object, zoals bijvoorbeeld kandidaat-kopers, dat zijn kopers die een bod hebben uitgebracht;
- Voorbeelden van voorbehouden kunnen zijn:
- voorbehoud van het verkrijgen van een financiering
- voorbehoud van bouwtechnische keuring
- voorbehoud van het vervallen van de Wet voorkeursrecht Gemeenten
- In de praktijk zal dit dus pas na de juridische overdracht van de woning zijn;
- Om te kunnen bieden ontvangt een bieder toegang tot het systeem via een link;
- Na het invoeren van een bod ontvangt de bieder een bevestigingsmail met de details van het bod.
Hoe een bod uit te brengen:
- Nadat u de woning heeft bezichtigd maakt u ons uw interesse om te bieden via een e-mail kenbaar;
- Wij zullen u alle aanwezige, door verkoper ter beschikking gestelde relevante gegevens toezenden, of via een link ter beschikking stellen;
- Vervolgens zullen wij u middels een link uitnodigen om toegang te krijgen tot het biedlogboek;
- Daar kunt u uw voorstel met eventuele voorwaarden, voorbehouden en gewenste toelichting invullen;
- Na het invoeren van een bod ontvangt de bieder een bevestigingsmail met de details van het bod;
- Het voorstel komt vervolgens bij ons binnen, waarna we dit met onze opdrachtgever zullen bespreken en u zo spoedig mogelijk een terugkoppeling geven.
Ter aanvulling:
- De koop van een woning (door de consument) is pas gesloten (rechtsgeldig) als de koopakte door zowel de koper als de verkoper is getekend
- Meer informatie in de Verkoopvoorwaarden en adviezen Onkenhout Makelaars
Bijzondere en algemene bepalingen op deze verkoop van toepassing:
- Deze brochure is door ons kantoor met de nodige zorgvuldigheid samengesteld aan de hand van de beschikbare gegevens en met de door de verkoper aan ons ter hand gestelde gegevens en tekeningen. Onzerzijds wordt echter geen enkele aansprakelijkheid aanvaard voor enige onvolledigheid, onjuistheid of anderszins, dan wel de gevolgen daarvan. Alle opgegeven maten en oppervlakten zijn indicatief.
- Op deze verkoop zijn de verkoopvoorwaarden van toepassing. Deze zijn op onze website bij de woning vermeld onder het tabblad algemene informatie Ook de daar beschreven bijzondere clausules zijn van toepassing.
- Op deze verkoop is ook de disclaimer beschreven op onze website van toepassing;
- Tevens verwijzen we met betrekking tot deze verkoop naar de privacyverklaring beschreven op onze website.
Detached living by the water opposite the Amsterdam Forest
This detached dike villa at Nieuwemeerdijk 377 in Badhoevedorp is situated on a large plot of 637 m² of building leasehold land, features a jetty on 52 m² of private bank and water in the Ringvaart canal, and has a 44-meter-deep west-facing garden.
This summer, you can already go boating from your own jetty onto the Nieuwe Meer or the Westeinderplassen. Or how about relaxing in your own forest and park behind the house. The home has been modernly renovated and is well laid out. Parking is available on your own property.
On the ground floor, you have an entrance with a vestibule, a spacious hall with a new toilet, and a living area of 43 m² divided into a through-living room with bay window, door to the terrace, and an open passage to the adjoining library/study in the former kitchen.
In the basement of over 26 m², a very cozy and extensive kitchen (period 2024) with built-in appliances and a dining room with French doors to the terrace and garden has been realized.
On the first floor, at the front, there is a bedroom of 13 m² with a balcony and views of the water and the forest. The luxury bathroom from the period 2024 with bathtub, walk-in shower, toilet, and a large vanity unit is also located at the front. The two other bedrooms of 12 and 5 m² overlook the endless tree-filled garden.
The second attic floor of approximately 12 m² with two skylights is very suitable as a cozy additional children’s bedroom.
This property (built in 1950) is situated on a plot of approximately 637 m² of building leasehold land and has approximately 136 m² of usable living area. This excludes external storage space such as the sheds (located in the garden) of approximately 6 and approximately 6 m² and excludes building-related outdoor space such as the roof terrace of approximately 21 m² and the balcony of approximately 2 m², and has a volume of approximately 465 m³ (measured as accurately as possible according to the industry-wide measurement instructions of the NVM, based on the NEN 2580 standard). In addition, the property includes a plot of bank and water of approximately 54 m² with a mooring jetty.
These measurements are indicative. This property has an Energy Label C.
Layout
Ground floor:
Entrance with meter cupboard, hall with heated toilet, staircase to the first floor, and door to the living room of approximately 31 m² with bay window, fireplace, and air conditioning. From both the hall and the living room, there is access to the library/study of approximately 12 m² with stairs to the basement and a door to the west-facing roof terrace of approximately 21 m² equipped with a large sunshade.
First floor:
Landing with doors to all rooms. Bathroom, renovated in 2023, of approximately 7 m² with bathtub, walk-in shower, double washbasin with vanity unit, and toilet. Bedroom at the front of approximately 13 m² with air conditioning and French doors to the east-facing balcony. Two bedrooms at the rear of approximately 12 m² and approximately 5 m² with storage space behind the knee walls. In the middle of the house is the fixed staircase to the second floor.
Second floor:
Attic room of approximately 12 m² with 2 Velux skylights, storage space behind the knee walls, and connections for a washing machine and dryer.
Basement:
Open-plan kitchen of approximately 12 m² with a U-shaped kitchen unit with various built-in appliances, renovated in 2023, and a dining/garden room of approximately 15 m² with French doors to the backyard with a veranda connected to a hardwood terrace. The central heating system is installed in a cupboard under the stairs.
Garden:
The spacious backyard faces west, is approximately 42 meters deep and approximately 11 meters wide, and has three levels. The first level is partly a concrete floor (veranda section) and partly a hardwood terrace. The slightly lower second level features a terrace with paving stones. The even lower third level has grass, two detached wooden storage sheds with French doors, various fruit trees, and perennial plants. There is also a rear access.
The front garden facing east is approximately 11 meters wide and approximately 2.7 meters deep and has a paved path to the front door, with additional areas of gravel and borders with perennial plants.
The side garden has a driveway for parking on private property.
Along the Ringvaart canal, there is a plot belonging to the property consisting of bank and water of approximately 5 meters deep and approximately 11 meters wide with a wooden mooring jetty.
Location:
The property is located in a unique position on the characteristic dike along the Ringvaart, making it possible to sail via the Nieuwe Meer into Amsterdam’s canal system. In addition, the Kagerplassen and the Westeinderplassen are also accessible via the Ringvaart.
A location with a beautiful, rural feel, unobstructed views, and all urban amenities within easy reach.
The center of Badhoevedorp, with various supermarkets, shops, schools, childcare facilities, sports facilities, and restaurants, is a short distance away and easily accessible by bicycle.
Parking is available on private property, and there is also parking in front of the house.
Accessibility is excellent due to its convenient location in relation to major roads. The A9 and A10 can be reached within minutes, and the A4 and A5 are also nearby. This makes cities such as Amstelveen, Amsterdam, Haarlem, and Schiphol easily accessible.
What makes this location extra special is the combination of peace, space, and water. Living on Nieuwemeerdijk means enjoying a green, water-rich environment with plenty of opportunities for walking, cycling, and recreation, while the dynamics of the city are always close by.
Would you like to enjoy the ultimate holiday feeling all year round in this wonderful home at Nieuwemeerdijk 377 in Badhoevedorp?
In this solid dike house by the water, you will forget everyday worries. The location by the water with a private jetty opposite the Amsterdam Forest is perfect for relaxing or going boating. The four lovely floors are so cozy and atmospheric that it rivals a holiday home. And in the amazing wooded garden, you will feel as if you are on the Veluwe. On top of that, the state of maintenance is good, as is its favorable location between Badhoevedorp, Amsterdam, and Amstelveen, whether by bicycle, boat, or car.
Would you like to experience the atmosphere?
- Contact your own MVA or NVM real estate agent
- Or schedule directly online via the “Plan Appointment” button on our website
- Or choose the “Request Viewing” button on Funda
We would be delighted to show you this property!
Appointments
We try to schedule our viewings as much as possible at fixed times and they are almost always individual. We therefore kindly request that you arrive on time and do not exceed the scheduled time if multiple viewings are planned.
If you are unable to attend, please inform us well in advance.
Prepare well for the viewing. All relevant information can be found on our website. Under the “particulars” tab you will find additional information not listed on Funda.
We also advise you to:
- carefully review the photos
- study the floor plans
- bring a list of questions to the viewing
We look forward to meeting you!
Asking price: €925,000 buyer’s costs
For more photos, floor plans, and extensive information, please visit our website!
This transaction is subject to our (sales) conditions, general terms and conditions, and the terms of the NVM, see our website.
Details:
- Year of construction: 1950
- Type: detached dike house
- Usable living area: 136 m²
- Continuous right of superficies until 2054
- Annual ground rent: €859.95
- Transfer in consultation, can be quick
- The following clauses apply and will be included in the purchase agreement:
Construction quality / Environmental clause / Asbestos clause / Energy label / Measurement instruction explanation clause / Non-owner-occupancy clause, see also the Sales Conditions and advice of Onkenhout Makelaars 2026 - Bidding takes place via a digital bidding log (more information under particulars on our website)
- The purchase of a home (by a consumer) is only concluded (legally valid) once the purchase agreement has been signed by both the buyer and the seller
Onderstaand zijn bij ons bekende jaarlijkse lasten van deze woning door de verkoper bij aanvang verkoop verstrekt:
- De onroerende zaak belasting op basis van peildatum 01-01-2025 bedraagt: € 400,90 voor de woning en € 1,30 voor het perceel berm/water.
- Het rioolrecht voor 2026 bedraagt: € 199,10
- De waterschapslasten (watersysteemheffing eigenaren) op basis van peildatum 01-01-2025 bedraagt: € 147,70 voor de woning en € 0,47 voor het perceel berm/water.
Deze bovenstaande lasten betreffen zakelijke lasten, welke reeds door verkoper zijn voldaan en bij verkoop per overdrachtsdatum zullen worden verrekend met koper. Dit betekent dat deze door koper tot en met het einde van het jaar aan verkoper zullen worden (terug)betaald;
De onderstaande lasten zijn (niet te verrekenen) gebruikerslasten:
- De afvalstoffenheffing bedragen voor deze eigenaren voor de periode 01-01-2026 tot en met 31-12-2026: € ….,--
- De watersysteemheffing ingezeten per 01-01-2026 bedraagt: € 162,92 per woonruimte
- De zuiveringsheffing woonruimte bedraagt € 95,87 per vervuilingseenheid voor de periode 01-01-2026 tot en met 31-12-2026.
06 Energielabel / Energy label
Energielabel Verkoper is verplicht om een door de rijksoverheid afgegeven Energielabel aan koper te overhandigen. Alhoewel zorgvuldigheid is betracht wordt noch door de verkoper noch door de verkopende makelaar enige aansprakelijkheid aanvaard voor de juistheid van de gegevens en de uitkomst van het huidige label en/of een eventueel verschil in uitkomst met een toekomstig Energielabel; Energy label The seller is obligated to provide the buyer with a government-issued Energy Label. Although every care has been taken, neither the seller nor the selling agent accepts any liability for the accuracy of the information or the outcome of the current label and/or any difference in outcome from a future Energy Label.07 Niet-zelfbewoningsclausule / Non-Occupancy Clause
Niet-zelfbewoningsclausule Bij de verkoop van dit object kan de bepaling met betrekking tot de Niet-zelfbewoningsclausule zoals in onze verkoopvoorwaarden zijn opgenomen van toepassing zijn. Indien van toepassing en door verkoper gewenst kan onderstaande bepaling worden opgenomen in de op te maken koopakte. Zodra een gegadigde, koper wordt en deze bepaling is van toepassing, verklaart hij met het aangaan van de overeenkomst bekend te zijn met deze bepaling. Indien gewenst kan aangegeven worden of deze bepaling is wel of niet van toepassing op dit object *in dit geval dient de keuze doorgehaald te worden Niet-zelfbewoningsclausule Koper verklaart ermee bekend te zijn dat verkoper de onroerende zaak (recentelijk) niet zelf heeft bewoond en dat verkoper derhalve koper niet kan informeren over eigenschappen respectievelijk gebreken aan het verkochte waarvan verkoper op de hoogte zou kunnen zijn geweest als hij het verkochte zelf feitelijk had gebruikt. In verband hiermee zijn partijen, in afwijking van het betreffende artikel in de koopakte en artikel 7:17 lid 1 en 2 BW, overeengekomen dat dergelijke eigenschappen respectievelijk gebreken voor rekening en risico van koper komen en dat hier bij de vaststelling van de koopsom rekening mee is gehouden. Koper vrijwaart verkoper, ook als deze een professionele partij is, voor alle eventuele aanspraken van derden. Koper is middels deze voorwaarde uitvoerig geïnformeerd over de inhoud van deze clausule voor de ondertekening van de koopovereenkomst en koper is zich bewust van de gevolgen van deze clausule. Koper is in de gelegenheid gesteld om de onroerende zaak bouwkundig (te laten) onderzoeken. In de koopakte zal worden opgenomen of koper hier wel of geen gebruik van heeft gemaakt. Non-Occupancy Clause The provision regarding the Non-Occupancy Clause, as included in our terms and conditions of sale, may apply to the sale of this property. If applicable and at the seller's request, the following provision can be included in the purchase agreement. As soon as a prospective buyer becomes a buyer and this provision applies, they declare, by entering into the agreement, that they are aware of this provision. If desired, you can indicate whether or not this provision applies to this property. *In this case, the selection should be crossed out. Non-Occupancy Clause The buyer declares that they are aware that the seller has not (recently) occupied the property themselves and that the seller therefore cannot inform the buyer about any features or defects of the property that the seller would have been aware of if they had actually used it themselves. In this regard, the parties have agreed, in deviation from the relevant article in the purchase agreement and Article 7:17, paragraphs 1 and 2 of the Dutch Civil Code, that such characteristics and defects are the buyer's responsibility and risk, and that this has been taken into account in determining the purchase price. The buyer indemnifies the seller, even if the seller is a professional party, against any third-party claims. By means of this condition, the buyer has been fully informed of the content of this clause before signing the purchase agreement and is aware of its consequences. The buyer has been given the opportunity to have the property structurally inspected. The purchase agreement will state whether or not the buyer has taken advantage of this opportunity.01 Verkoopvoorwaarden en adviezen Onkenhout Makelaars 2026 Versie 20260122
Op deze verkoop zijn de volgende Verkoopvoorwaarden Onkenhout Makelaars en adviezen van toepassing. Indien deze voorwaarden niet volstaan of onvoldoende volstaan, pas dan zijn de Algemene-consumentenvoorwaarden-makelaardij-2026 van toepassing. Waarbij we benadrukken, dat de Verkoopvoorwaarden Onkenhout Makelaars en adviezen prefereren. Deskundige begeleiding: • Wij adviseren potentiële kopers gebruik te maken van een beëdigd of gecertificeerd NVM of MVA-makelaar; • Indien een potentiële koper geen gebruik wenst te maken van deskundige aankoopbegeleiding, zulks in de vorm van een beëdigd of gecertificeerd makelaar, benadrukken wij, dat de potentiële koper de verantwoordelijkheden met betrekking tot de aankoop, de onderzoeksplicht en het biedingsproces niet verschuiven naar de verkoper, dan wel de verkopende makelaar. Onkenhout Real Estate Agents' Terms and Conditions of Sale and Advice 2026 Version 20260122 The following Onkenhout Real Estate Agents' Terms and Conditions of Sale and Advice (Verkoopvoorwaarden en adviezen Onkenhout Makelaars) apply to this sale. If these terms and conditions are insufficient or insufficient, the General Consumer Terms and Conditions for Real Estate Agents 2026 will apply. We emphasize that the Onkenhout Real Estate Agents' Terms and Conditions of Sale and Advice (Verkoopvoorwaarden en adviezen Onkenhout Makelaars) take precedence. Expert guidance: • We advise potential buyers to use a sworn or certified NVM or MVA broker; • If a potential buyer does not wish to use expert purchase guidance, in the form of a sworn or certified broker, we emphasize that the potential buyer does not shift the responsibilities with regard to the purchase, the duty of investigation and the bidding process to the seller or the selling broker. Algemene opmerkingen: • De verkoper en diens makelaar hebben een mededelingsplicht en zullen aan aspirant-koper al hetgeen meedelen dat ter kennis van koper behoort te worden gebracht, met dien verstande dat inlichtingen over feiten welke aan koper bekend zijn of uit eigen onderzoek bekend hadden kunnen zijn, voor zover een dergelijk onderzoek naar de geldende verkeersopvattingen van koper verlangd mag worden, door verkoper en/of diens makelaar niet behoeven te worden verstrekt. • De aspirant-koper (en zijn makelaar) hebben een uitgebreide onderzoeksplicht en aanvaardt diens onderzoeksplicht als zodanig. Zij dienen zelf onderzoek te doen naar de aanwezigheid of ontbreken van vergunningen van eventueel aanwezige aan- of bijgebouwen, dakkapellen en/of uitbouwen en hiervoor de koop gangbare informatiebronnen te raadplegen en ook de volledigheid en/of juistheid van deze informatie te toetsen; • Onkenhout Makelaars BV behoudt zich het recht voor om kandidaat-kopers te toetsen bij diverse overheidsregisters om de kredietwaardigheid en betrouwbaarheid te toetsen. • Voor de koper van een woning is het raadzaam om een overlijdensrisicoverzekering af te sluiten. General comments: • The seller and his broker have an obligation to disclose and will disclose to the prospective buyer all that should be brought to the buyer's attention, with the understanding that information about facts that are known to the buyer or could have been known from their own investigation, insofar as such an investigation into the prevailing traffic views may be required of the buyer, need not be provided by the seller and/or his broker. • The prospective buyer (and his broker) have an extensive duty to investigate and accept their duty to investigate as such. They must themselves investigate the presence or absence of permits for any existing extensions or outbuildings, dormers and/or extensions and to consult the usual sources of information for this purpose and also to check the completeness and/or correctness of this information; • Onkenhout Makelaars BV reserves the right to test potential buyers against various government registers to test creditworthiness and reliability. • It is advisable for the buyer of a home to take out a life insurance policy. Biedingen: • Biedingen dienen via het biedboekportaal van Eerlijk Bieden van de verkopend makelaar gedaan te worden; • De Verkoper behoudt te allen tijde het recht van beraad en gunning. Dit houdt in dat de Verkoper niet verplicht is om het Registergoed te gunnen aan de kandidaat met het hoogste bod en/of beste voorwaarden. • De Algemene Voorwaarden van Eerlijk Bieden zijn beschikbaar via deze link https://eerlijkbieden.nl/algemene-voorwaarden/ • De potentiële koper dient in zijn voorstel(bieding) aan te geven er al of niet een bouwtechnische keuring zal plaatsvinden. De (bouw)technische keurder dient in overleg met de verkopend makelaar plaats te vinden; • Indien de verkoper instemt met een bouwtechnische keuring door de potentiële koper, verklaart de potentiële koper, onafhankelijk van de uitkomst van deze keuring, dat hij het rapport zal gebruiken voor eigen gebruik of voor gebruik van zijn aankoopmakelaar en hij of zijn makelaar, in het kader van de privacy het rapport, de inhoud van het rapport, de gegevens van de verkopers niet met andere deelt, zonder toestemming van de verkoper; • De aspirant-koper dient ter beoordeling van en aan de verkopende makelaar aan te tonen, dat zijn of haar onderliggende voorstel voldoende financieel is gewaarborgd. Een biedingsvoorstel dient te worden aangevuld door een toelichting, dan wel afgifte van een uitgebracht advies door een daartoe deskundig en erkend financiële instelling of adviseur. • De aspirant-koper dient in zijn of haar voorstel op te nemen of de financieringsbehoefte in- of exclusief een overbruggingshypotheek is; • Biedingen blijven van kracht tot het moment waarop de verkoper (en/of diens makelaar) antwoordt met een acceptatie, het uitbrengen van een ander voorstel of door afwijzing van het door aspirant-koper uitgebrachte voorstel; • De koop van een woning (door de consument) is pas gesloten (rechtsgeldig) als de koopakte door zowel de koper als de verkoper is getekend; • Na overeenstemming zal de verkopend makelaar de intentie tot het tekenen van de koopovereenkomst met de overeengekomen voorwaarden, schriftelijk bevestigen, waarbij de koper gevraagd wordt het meegezonden personaliaformulier ingevuld, tezamen met een afschrift van een geldig legitimatiebewijs terug te sturen; • Vervolgens zal er in overleg met betrokken partijen een afspraak voor ondertekening bij de notaris worden gemaakt. Afwijking voorwaarden Eerlijk Bieden In afwijking van Artikel 4.8 van Eerlijk Bieden: “Na het passeren van de eventuele aangekondigde Sluitingstijd wordt het Biedformulier gedeactiveerd. Kandidaten kunnen hierna geen nieuwe bieding meer uitbrengen op het Registergoed, noch een eerder uitgebrachte Bieding intrekken” & In afwijking van Artikel 5.9 van Eerlijk Bieden: “Na het aanwijzen van een koper wordt het biedformulier gedeactiveerd. Kandidaten kunnen hierna geen nieuwe bieding meer uitbrengen op het Registergoed, noch een eerder uitgebrachte Bieding intrekken.” Is de volgende aanvulling van toepassing: Aangezien wij als verkopende makelaar optreden in het belang van onze opdrachtgever, kunnen we eventuele biedingen die na de sluitingstijd worden uitgebracht niet negeren. We refereren graag aan het schriftelijkheidsbeginsel: “De koop van een woning (door de consument) is pas gesloten (rechtsgeldig) als de koopakte door zowel de koper als de verkoper is getekend”. Let Op! Voor de particuliere verkoper geldt dit schiftelijkheidsbeginsel overigens ook. Wij willen wel graag benadrukken, dat we ons zullen inspannen om een dergelijke situatie te voorkomen. In een dergelijk geval zullen we de ontstane situatie bespreken met onze opdrachtgever en het vervolg met de betrokkenen communiceren. NVM protocol digitaal biedlogboek Sinds 1 januari 2023 zijn de bij de brancheorganisaties aangesloten makelaars verplicht om bij de verkoop van woningen gebruik te maken van een digitaal biedlogboek. In de praktijk blijkt dat er nog veel onduidelijkheid bestaat. Daarom heeft De Nederlandse Vereniging van Makelaars gewerkt aan een duidelijke en voor iedereen bindende beschrijving van het biedproces en biedlogboek. Meer info via deze link https://www.nvm.nl/wonen/kopen/bieden-op-een-huis/?_gl=1*1rwhd4k*_up*MQ..*_ga*MjQyMzg1OTg2LjE3NjkwODczNjY.*_ga_JKVCRJCQ0N*czE3NjkwODczNjYkbzEkZzEkdDE3NjkwODczNzQkajUyJGwwJGgw Bids: • Bids must be done via the bid book portal of Eerlijk Bieden of the selling broker; • The Seller reserves the right of deliberation and award at all times. This means that the Seller is not obligated to award the Registered Property to the candidate with the highest bid and/or best terms. • The General Terms and Conditions of Eerlijk Bieden are available via this link https://eerlijkbieden.nl/algemene-voorwaarden/ • The potential buyer must indicate in his proposal (bid) whether or not a building inspection will take place. The technical inspector must take place in consultation with the selling broker; • If the seller agrees to a building inspection by the potential buyer, the potential buyer declares, regardless of the outcome of this inspection, that he will use the report for his own use or for the use of his purchasing agent and that he or his agent will not share the report, the contents of the report, or the seller's details with others, in the context of privacy, without the seller's permission;The prospective buyer must demonstrate to and for the assessment of the selling broker that his or her underlying proposal is sufficiently financially guaranteed. A bid proposal must be supplemented by an explanation, or the issue of an advice issued by an expert and recognized financial institution or advisor. • The prospective buyer must include in his or her proposal whether the financing requirement includes or excludes a bridging mortgage; • Bids remain valid until the seller (and/or his/her agent) responds with an acceptance, submits another proposal or rejects the proposal submitted by the prospective buyer; • The purchase of a home (by the consumer) is only concluded (legally valid) when the purchase agreement has been signed by both the buyer and the seller; • After agreement has been reached, the selling agent will confirm in writing the intention to sign the purchase agreement with the agreed conditions, whereby the buyer will be asked to return the enclosed personal details form, completed, together with a copy of a valid ID; • An appointment for signing at the notary will then be made in consultation with the parties involved. Deviation from theTerms of Notwithstanding Article 4.8 of Eerlijk Bieden: "After any announced closing time has passed, the Bidding Form will be deactivated. Candidates may no longer submit a new bid on the Registered Property, nor withdraw a previously submitted bid." & Notwithstanding Article 5.9 of Eerlijk Bieden: "After a buyer has been designated, the Bidding Form will be deactivated. Candidates may no longer submit a new bid on the Registered Property, nor withdraw a previously submitted bid." The following addition applies: Since we, as the selling agent, act in the interest of our client, we cannot ignore any bids submitted after the closing time. We refer to the principle of written form: "The purchase of a home (by the consumer) is only concluded (legally valid) when the deed of sale has been signed by both the buyer and the seller." Note: This principle of writing also applies to private sellers. We would like to emphasize that we will make every effort to prevent such a situation. In such a case, we will discuss the situation that has arisen with our client and communicate the next steps to those involved. NVM protocol for digital bidding log Since January 1, 2023, real estate agents affiliated with the trade associations are required to use a digital bidding log when selling homes. In practice, there is still considerable uncertainty. Therefore, the Dutch Association of Real Estate Agents has developed a clear and universally binding description of the bidding process and bidding log. More information can be found at this link: https://www.nvm.nl/wonen/kopen/bieden-op-een-huis/?_gl=1*1rwhd4k*_up*MQ..*_ga*MjQyMzg1OTg2LjE3NjkwODczNjY.*_ga_JKVCRJCQ0N*czE3NjkwODczNjYkbzEkZzEkdDE3NjkwODczNzQkajUyJGwwJGgw Opkoopbescherming Op het Verkochte is een regeling inhoudende een 'opkoopbescherming' van toepassing. Koper verklaart daar zelf onderzoek naar te hebben gedaan of daar uit eigen beweging van af te zien. Indien er sprake is van een 'zelfbewoningsplicht', verklaren Partijen dat de daarop betrekkende regeling is/wordt nageleefd, ieder voor zover het hen betreft. • Voor informatie omtrent de opkoopbescherming wordt onder meer verwezen naar https://haarlemmermeergemeente.nl/opkoopbescherming In 2026 geldt een WOZ grens van € 592.000,- https://www.amsterdam.nl/wonen-bouwen-verbouwen/regels-huiseigenaren/regels-opkoopbescherming/ In 2026 geldt een WOZ grens van € 637.000,- https://haarlem.nl/verhuurvergunning-opkoopbescherming In 2026 geldt een WOZ grens van € 451.000,- • Let op deze bedragen zijn indicatief Purchase protection A regulation containing "purchase protection" applies to the Property Sold. The buyer declares that he or she has conducted their own investigation into this matter or has voluntarily waived the right to do so. If there is a "self-occupancy requirement," the parties declare that the relevant regulations have been/will be complied with, each insofar as they are concerned. • For information about the purchase protection, please visit https://haarlemmermeergemeente.nl/opkoopbescherming In 2026, the WOZ limit is €592,000. https://www.amsterdam.nl/wonen-bouwen-verbouwen/regels-huiseigenaars/regels-opkoopbescherming/ In 2026, the WOZ limit is €637,000. https://haarlem.nl/verhuurvergunning-opkoopbescherming In 2026, the WOZ limit is €451,000. • Please note that these amounts are indicative. Vergunningsplicht tweede woning (pied-à-terre) 2026: Indien koper na 1 januari 2026 een tweede woning in Amsterdam als pied-à-terre wil gaan gebruiken, dient hiervoor een vergunning te worden aangevraagd. Dit mag alleen als er aan één van de volgende voorwaarden wordt voldaan: -Koper is werkzaam in Amsterdam voor minimaal 2 dagen per week voor minimaal 6 maanden. -Koper verleend mantelzorg voor minimaal 8 uur per week aan een naaste die in Amsterdam woont. -Koper heeft minimaal 3 jaar in Amsterdam gewoond en ingeschreven gestaan in de periode voordat de tweede woning in gebruik wordt genomen én koper verhuist naar het buiteland. Daarnaast gelden de volgende voorwaarden: -Koper staat niet ingeschreven als bewoner in de gemeente Amsterdam. -Koper heeft maximaal 1 tweede woning in Amsterdam. -Koper of leden van zijn huishouden gebruiken de woning om er zelf in te verblijven. -Koper mag de woning niet gebruiken als kantoor of voor vakantieverhuur. -De woning is geen sociale- of midden huur woning. -De vergunning is 3 jaar geldig. Permit requirement for second residence (pied-à-terre) 2026: If the buyer wishes to use a second residence in Amsterdam as a pied-à-terre after January 1, 2026, a permit must be applied for. This is only permitted if one of the following conditions is met: -The buyer must work in Amsterdam for at least 2 days per week for at least 6 months. -The buyer must provide informal care for at least 8 hours per week to a loved one living in Amsterdam. -The buyer must have lived and been registered in Amsterdam for at least 3 years before moving into the second residence and must be moving abroad. In addition, the following conditions apply: -The buyer is not registered as a resident of the municipality of Amsterdam. -The buyer must have a maximum of one second residence in Amsterdam. -The buyer or members of their household must use the residence for their own purposes. -The buyer may not use the residence as an office or for holiday rentals. The property is not social or mid-range rental housing. The permit is valid for three years. Digitaal Stelsel Omgevingswet (DSO) • Op het Verkochte rusten mogelijk publiekrechtelijke beperkingen die niet uit de openbare registers van het Kadaster blijken. Deze publiekrechtelijke beperkingen worden door het Digitaal Stelsel Omgevings-wet (DSO) beschikbaar gemaakt en zijn onder meer raadpleegbaar via https://omgevingswet.over-heid.nl/regels-op-de-kaart/. • Koper verklaart daar zelf onderzoek naar te hebben gedaan of daar uit eigen beweging van af te zien. Digital Environmental Act System (DSO) • The Property Sold may be subject to public law restrictions that are not apparent from the public registers of the Land Registry. These public law restrictions are made available by the Digital System for the Environment Act (DSO) and can be consulted at https://omgevingswet.over-heid.nl/regels-op-de-kaart/ , among other places. • The buyer declares that they have conducted their own investigation into this matter or that they will waive their right to do so. Koopovereenkomst • De overeenkomst zal worden vastgelegd in een koopakte (volgens het model van de Koninklijke Notariële beroepsorganisatie, Ring Amsterdam), door een door koper aan te wijzen notaris kantoorhoudende in Amsterdam of de regio Haarlemmermeer binnen een straal van 10 km van het ter verkoop aangeboden object. Indien om moverende redenen hiervan wordt afgeweken, zal koper aan makelaar verkoper, een reiskostenvergoeding verschuldigd zijn voor zowel de heen- als terugreis, van € 125,-- per half uur excl. BTW, ingaande een kwartier na vertrek. De keuze van de notaris, dient ter goedkeuring aan verkoper te worden voorgelegd, door middel van een overzicht van de voor rekening van verkoper komende notariskosten; • Na het moment van ontvangst van een door beide partijen ondertekende koopovereenkomst heeft de particuliere koper nog drie dagen bedenktijd. In deze drie dagen kan hij zonder opgaaf van reden alsnog de koopakte ontbinden. • Indien verkoper het te verkopen object binnen de voor de belasting gestelde (teruggave)periode doorverkoopt en er is sprake van het zogenaamde “voordeel overdrachtsbelasting”, dan zal dit voordeel altijd ten gunste van de verkoper zijn. Zelfs als dat niet in het onderhandelingsproces is besproken. Purchase agreement • The agreement will be recorded in a purchase deed (according to the model of the Royal Notarial Professional Organisation, Ring Amsterdam), by a notary to be appointed by the buyer, with an office in Amsterdam or the Haarlemmermeer region within a radius of 10 km of the object offered for sale. If for compelling reasons this is deviated from, the buyer will owe the seller's broker a travel allowance for both the outward and return journey, of € 125,-- per half hour excl. VAT, starting fifteen minutes after departure. The choice of notary must be submitted to the seller for approval, by means of an overview of the notary costs to be borne by the seller; • After the moment of receipt of a purchase agreement signed by both parties, the buyer (consumer) has three days to consider. During these three days, he can still cancel the purchase deed without giving a reason. • If the seller resells the object to be sold within the taxable (refund) period and there is a so-called “transfer tax benefit”, then this benefit will always be in favor of the seller. Even if this was not discussed in the negotiation process. Legitimatie In het kader van de Wwft (Wet Witwassen en Terrorismebestrijding) dient een kandidaat koper zich te legitimeren. Wij dienen we als makelaar onderzoek te doen naar de kandidaat kopers. Ook dienen we onderzoek te doen naar de herkomst van de gelden die worden aangewend om dit object te financieren; Legitimation In the context of the Wwft (Money Laundering and Counterterrorism Act) a potential buyer must identify themselves. We as a broker must investigate the potential buyers. We must also investigate the origin of the funds used to finance this object; Inschrijving getekende koopakte in de openbare registers Zowel verkoper als koper heeft de mogelijkheid om de notaris opdracht te geven om de door beide partijen getekende koopakte in te schrijven in de daartoe bestemde openbare registers van de Dienst voor het kadaster en de openbare registers. Dit gebeurt door aanbieding van een afschrift/uittreksel van dit koopcontract aan de bewaarder van voormelde Dienst. Ter toelichting op de keuze om de koop wel of niet in te schrijven in de daartoe bestemde openbare registers is koper op het volgende gewezen: Ingevolge artikel 7:3 lid 3 Burgerlijk Wetboek kunnen tegen de koper wiens koop is ingeschreven niet worden ingeroepen: • een na de inschrijving van die koop tot stand gekomen vervreemding of bezwaring door de verkoper, behoudens de in dat artikellid uitzonderingen; • vervreemdingen of bezwaringen die plaatsvinden als vervolg op de onder a bedoelde vervreemding of bezwaring door de verkoper; • een onderbewindstelling die na de inschrijving van de koop is tot stand gekomen of die, zo zij tevoren was tot stand gekomen, toen niet in de openbare registers was ingeschreven, dit laatste tenzij de koper haar op het tijdstip van de inschrijving van de koop kende; • een na de inschrijving van de koop tot stand gekomen verhuring of verpachting; • een na de inschrijving van de koop ingeschreven beding als bedoeld in artikel 252 van Boek 6; • een executoriaal of conservatoir beslag waarvan het proces-verbaal na de inschrijving van de koop is ingeschreven; • een faillissement of surséance van betaling van de verkopers of toepassing ten aanzien van hem van de schuldsaneringsregeling natuurlijke personen, uitgesproken na de dag waarop de koop is ingeschreven. Het recht als bedoeld in lid 1 van dit artikel komt niet aan koper toe indien blijkt dat hij daarvan binnen zes maanden vóór ondertekening van dit koopcontract reeds eerder gebruik heeft gemaakt ter zake van een koopovereenkomst met betrekking tot het verkochte tussen dezelfde partijen. De kosten van inschrijving van de koop, zoals de onderzoeks- en inschrijvingskosten van de Dienst voor het kadaster en de openbare registers, en de over die kosten verschuldigde omzetbelasting, zijn voor rekening van degene die de inschrijving wenst. Verkoper heeft aangegeven geen aanleiding te hebben om de koopakte in te schrijven. Indien de koper de koopakte wenst in te schrijven, dan kan hij dit vooraf of tijdens de koopakte bespreking aangeven. De kosten hiervan (gemiddeld tussen de € 275,- en € 350,-) zijn in dat geval voor zijn rekening. Registration of signed deed of sale in the public registers Both seller and buyer have the option to instruct the notary to register the deed of sale signed by both parties in the public registers of the Land Registry Service and the public registers intended for this purpose. This is done by offering a copy extract of this purchase contract to the depositary of the aforementioned Service. In order to explain the choice of whether or not to register the purchase in the public registers provided for this purpose, the buyer was informed of the following: Pursuant to Article 7: 3, paragraph 3 of the Dutch Civil Code, the following cannot be invoked against the buyer whose purchase is registered: • alienation or encumbrance by the seller after registration of that purchase, subject to the exceptions in that paragraph; • alienations or encumberments that take place as a follow-up to the alienation or encumberment referred to in a) by the seller; • an administration order that came into existence after the registration of the purchase or which, if it had been concluded beforehand, when it was not registered in the public registers, the latter unless the buyer knew it at the time of registration of the purchase ; • a lease or lease concluded after the registration of the purchase; • a stipulation registered after the registration of the purchase as referred to in Article 252 of Book 6; • an enforceable or conservatory seizure, the official report of which is registered after the purchase has been registered; • bankruptcy or suspension of payment of the sellers or application with regard to him of the debt rescheduling scheme for natural persons, pronounced after the day on which the purchase was registered. The right as referred to in paragraph 1 of this article does not belong to the buyer if it appears that he has already made use of this within six months prior to the signing of this purchase contract with regard to a purchase agreement with regard to the sale between the same parties. The costs of registering the purchase, such as the investigation and registration costs of the Land Registry Office and the public registers, and the sales tax due on those costs, are for the account of the person who wishes to register. The seller has indicated that he has no reason to register the deed of purchase. If the buyer wishes to register the purchase deed, he can indicate this beforehand or during the purchase deed discussion. The costs of this (on average between € 275 and € 325) are in that case for his account. Disclaimer: • Deze informatie is zo zorgvuldig mogelijk samengesteld in samenwerking met en in opdracht van de verkoopopdrachtgever. Het is echter mogelijk dat deze gegevens onjuist of verouderd zijn of mogelijk ontbreken. Geïnteresseerden zullen zelf ook onderzoek dienen te doen; • De meest recente Algemene Consumentenvoorwaarden Makelaardij 2026 van de NVM zijn van toepassing, zie ook https://www.nvm.nl/over-nvm/voorwaarden/?_gl=1*1k419o5*_up*MQ..*_ga*MTYzMTkzMTUzMC4xNzY4NTcxMDky*_ga_JKVCRJCQ0N*czE3Njg1NzEwOTEkbzEkZzAkdDE3Njg1NzEwOTEkajYwJGwwJGgw ; • Uitsluiting aansprakelijkheid bij collegiale transactie. In het geval wij betrokken zijn bij een gezamenlijke / collegiale transactie sluiten wij hoofdelijk aansprakelijkheid ten alle tijden uit. Disclaimer: • This information has been compiled as carefully as possible in collaboration with and on behalf of the sales client. However, it is possible that this information is incorrect or outdated or possibly missing. Interested parties will also have to do their own research; • The General Terms and Conditions of the NVM apply: Algemene Consumentenvoorwaarden Makelaardij 2026 van de NVM zijn van toepassing, zie ook https://www.nvm.nl/over-nvm/voorwaarden/?_gl=1*1k419o5*_up*MQ..*_ga*MTYzMTkzMTUzMC4xNzY4NTcxMDky*_ga_JKVCRJCQ0N*czE3Njg1NzEwOTEkbzEkZzAkdDE3Njg1NzEwOTEkajYwJGwwJGgw ; • Liability Disclaimer for Collaborative Transactions. In the event we are involved in a joint/collegial transaction, we disclaim any joint and several liability at all times. Overige algemene bepalingen die we standaard bij elk object toevoegen en niet altijd van toepassing zijn. Indien gewenst kan aangegeven worden of een betreffende bepaling wel of niet van toepassing op dit object *in dat geval dient de keuze doorgehaald worden.02 Bouwkwaliteit/Building quality
Bouwkwaliteit Bij de verkoop van dit object kan de bepaling met betrekking tot de bouwkwaliteit zoals in onze verkoopvoorwaarden zijn opgenomen van toepassing zijn. Indien van toepassing en door verkoper gewenst kan onderstaande bepaling worden opgenomen in de op te maken koopakte. Zodra een gegadigde, koper wordt en deze bepaling is van toepassing, verklaart hij met het aangaan van de overeenkomst bekend te zijn met deze bepaling. Indien gewenst kan aangegeven worden of deze bepaling is wel of niet van toepassing op dit object *in dit geval dient de keuze doorgehaald te worden Bouwkwaliteit Zoals in de koopakte staat beschreven staat verkoper ervoor in, dat hij aan koper alle inlichtingen/ feiten heeft verschaft die verkoper in het kader van de mededelingsplicht aan koper behoort over te brengen, met dien verstande dat inlichtingen/ feiten die aan koper bekend of kenbaar zijn op het moment van het tot stand komen van de koopovereenkomst niet door verkoper behoeven te worden verstrekt. De koper verklaart ermee bekend te zijn dat de betreffende woning mogelijk een niet recente woning kan zijn en dat de eisen die aan de bouwkwaliteit van een dergelijke woning mogen worden gesteld (aanzienlijk) lager kan liggen dan bij nieuwe(re) woningen. In afwijking van de op te maken koopakte en artikel 7:17 lid 1 en 2 BW komt het geheel of ten dele ontbreken van een of meer eigenschappen van de onroerende zaak voor normaal en bijzonder gebruik en het eventueel anderszins niet- beantwoorden van de zaak aan de overeenkomst voor rekening en risico van koper. Bij het vaststellen van de vraagprijs is hier door verkoper rekening mee gehouden. Koper is uitvoerig geïnformeerd over de inhoud van deze clausule voor de ondertekening van de koopovereenkomst en koper is zich bewust van de inhoud van deze clausule. Koper is in de gelegenheid gesteld om de onroerende zaak bouwkundig (te laten) onderzoeken. In de koopakte zal worden opgenomen of koper hier wel of geen gebruik van heeft gemaakt. Zelfs als er reeds in opdracht van de verkoper in aanvulling op zijn mededelingsplicht een bouwtechnische keuring heeft plaatsgevonden, dan nog is het voor koper mogelijk om in zijn bieding een ontbindende voorwaarde voor een "eigen bouwtechnisch onderzoek" op te nemen, indien koper meer informatie wenst over de bouwkundige staat. Dit onderzoek zal dan voor eigen risico en rekening in overleg met de verkoper en/of zijn makelaar uitgevoerd kunnen worden. In aanvulling op bovenstaande bepaling verklaren we nog als volgt. Om zo goed mogelijk aan de mededelingsplicht te voldoen hebben wij, voor zover mogelijk onze verkopers gevraagd zoveel mogelijk informatie te verstrekken over de (staat) van de woning, een en ander zoals blijkt uit de aangeleverde en in de koopakte genoemde stukken. Naar aanleiding daarvan verklaart verkoper dan ook nog aanvullend, dat tenzij hij van deze woning de kwaliteit ervan heeft gegarandeerd, hij niet in staat voor de (kwaliteit van de) funderingen, de vloeren, de muren, de plafonds, eventuele verbouwingen, de leidingen voor elektriciteit, water en gas, de riolering, de afwezigheid van doorslaand of optrekkend vocht en de afwezigheid van enig ongedierte c.q. schimmels (zoals bijvoorbeeld houtworm, boktor, zwam etc.). Ook de aanwezigheid van loodhoudende materialen en/of andere milieuschadelijke stoffen zijn niet bekend, ondanks dat het ten tijde van de bouw en/of renovatie van het registergoed, gebruikelijk was om lood, loodhoudende materialen en/of andere milieuschadelijke stoffen in de bouw te verwerken. De koper verklaart hiermee bekend te zijn en ook met het feit dat de verkoper geen enkele aansprakelijkheid wil aanvaarden met betrekking tot zichtbare en onzichtbare/ verborgen gebreken van eventuele verbouwing, renovaties, aan- of opbouwen van meer recentere datum. De gevolgen en risico’s van het aanvragen en al dan niet verkrijgen van betreffende vergunningen, toestemmingen, vrijstellingen, ontheffingen e.d., komen eveneens geheel voor rekening van koper. Hieronder vallen onder meer zichtbare en onzichtbare gebreken die het gevolg zijn van het niet bouwen conform de bouwvoorschriften/ bouwvergunningen/ bestemmingsplan/omgevingsplan bepalingen e.d. Aangezien de verkoper (onder meer door de makelaar) nadrukkelijk is gewezen op zijn mededelingsplicht, hij naar aanleiding daarvan maximaal heeft verklaard en op basis van deze clausule, komen partijen overeen dat na de levering te ontdekken (verborgen) gebreken voor rekening en risico van koper zijn. Koper vrijwaart verkoper alsmede de BV, de makelaar(s) en medewerkers van Onkenhout Makelaars van alle aansprakelijkheid ter zake van eventueel (later) te constateren aanwezigheid van bouwkundige gebreken, dan wel ontbreken van bouwkundige voorzieningen. Other general terms and conditions that we include as standard with each property and that may not always apply. If desired, you can indicate whether or not a provision applies to this property. *In that case, cross out the box. Construction Quality The provision regarding construction quality, as included in our terms and conditions of sale, may apply to the sale of this property. If applicable and desired by the seller, the following provision can be included in the purchase agreement. As soon as a prospective buyer becomes a buyer and this provision applies, they declare that they are aware of this provision by entering into the agreement. If desired, you can indicate whether or not this provision applies to this property. *In that case, cross out the box. Construction Quality As stated in the purchase agreement, the seller warrants that they have provided the buyer with all information/facts that the seller is required to provide to the buyer within the framework of the disclosure obligation, with the understanding that information/facts known or apparent to the buyer at the time the purchase agreement is concluded are not required to be provided by the seller. The buyer declares that they are aware that the property in question may not be a recent property and that the requirements for the construction quality of such a property may be (considerably) lower than for newer properties. Notwithstanding the purchase agreement to be drawn up and Article 7:17, paragraphs 1 and 2 of the Dutch Civil Code, the total or partial absence of one or more features of the property for normal and special use, and any other failure of the property to comply with the agreement, shall be at the buyer's expense and risk. The seller took this into account when determining the asking price. The buyer was fully informed about the content of this clause before signing the purchase agreement and is aware of its content. The buyer was given the opportunity to have the property structurally inspected. The purchase agreement will state whether or not the buyer has taken advantage of this opportunity. Even if a building inspection has already been carried out on the seller's behalf in addition to their disclosure obligation, the buyer can still include a condition precedent in their offer for their "own building inspection" if they wish more information about the structural condition. This inspection will then be carried out at their own risk and expense in consultation with the seller and/or their real estate agent. In addition to the above provision, we also state the following: To best comply with the disclosure obligation, we have, to the extent possible, asked our sellers to provide as much information as possible about the (condition) of the property, as evidenced by the documents provided and referred to in the purchase agreement. In light of this, the seller further declares that unless they have guaranteed the quality of this property, they are not responsible for the (quality of the) foundations, floors, walls, ceilings, any renovations, the electricity, water, and gas lines, the sewer system, the absence of penetrating or rising damp, and the absence of any vermin or mold (such as woodworm, longhorn beetles, fungus, etc.). The presence of lead-containing materials and/or other environmentally harmful substances is also unknown, despite the fact that it was common practice at the time of the construction and/or renovation of the registered property to use lead, lead-containing materials, and/or other environmentally harmful substances in construction. The buyer declares that they are aware of this and that the seller accepts no liability whatsoever for visible and invisible/hidden defects resulting from any more recent renovations, additions, or additions. The consequences and risks of applying for and obtaining (or not obtaining) relevant permits, approvals, exemptions, waivers, etc., are also entirely the buyer's responsibility. This includes, but is not limited to, visible and invisible defects resulting from failure to build in accordance with building regulations/building permits/zoning plan/environmental plan provisions, etc. Given that the seller (including by the real estate agent) has been explicitly reminded of their duty to disclose information, and has declared their disclosure to the maximum extent necessary, and based on this clause, the parties agree that any (hidden) defects discovered after delivery are the buyer's responsibility and risk. The buyer indemnifies the seller, as well as the BV, the broker(s) and employees of Onkenhout Makelaars, from all liability in respect of any (later) discovered presence of construction defects or lack of construction facilities.03 Milieuclausule / Environmental Clause
Milieuclausule Bij de verkoop van dit object kan de bepaling met betrekking tot de milieuclausule zoals in onze verkoopvoorwaarden zijn opgenomen van toepassing zijn. Indien van toepassing en door verkoper gewenst kan onderstaande bepaling worden opgenomen in de op te maken koopakte. Zodra een gegadigde, koper wordt en deze bepaling is van toepassing, verklaart hij met het aangaan van de overeenkomst bekend te zijn met deze bepaling. Indien gewenst kan aangegeven worden of deze bepaling is wel of niet van toepassing op dit object *in dit geval dient de keuze doorgehaald te worden Milieuclausule Verkoper verklaart dat ten aanzien van de bodem/het grondwater behorende bij of onderdeel uitmakende van het verkochte mogelijk geen onderzoek naar verontreinigingen en mogelijke gebruiksbeperkingen heeft plaatsgevonden, tenzij anders vermeld en mogelijk beschreven in de verkoopinformatie bij “bekende bijzonderheden”. Het is verkoper niet bekend of in de verkochte onroerende zaak (een) ondergrondse tank(s) bestemd voor de opslag van (milieuonvriendelijke) (vloei)stoffen aanwezig is/zijn of is/zijn geweest, tenzij anders vermeld en mogelijk beschreven in de verkoopinformatie bij “bekende bijzonderheden”. Voor wat betreft de tuin en/of omliggende en bijbehorende grond verklaart verkoper nog, dat voor zover aan hem bekend er geen beperkingen zijn voor het gebruik als tuin. Indien koper voornemens is, de tuin deels of geheel als moestuin te gaan bestemmen, kan verkoper geen garantie geven dat de tuin hiervoor geschikt is. Indien verkoper milieu informatie heeft opgevraagd, dan zal deze door de verkoper ter beschikking worden gesteld aan koper. Eventueel aanwezige door gemeenten, provincies of andere overheden afgegeven verklaringen geven geen volledige zekerheid. Zelfs als er reeds in opdracht van de verkoper in aanvulling op zijn mededelingsplicht onderzoek is gedaan naar een (ondergrondse tank(s) en/of grond-, bodem- en/of grondwaterverontreiniging, dan nog is het voor koper mogelijk om in zijn bieding een ontbindende voorwaarde voor een "eigen onderzoek" op te nemen, indien koper meer informatie wenst over (ondergrondse tank(s) en/of grond-, bodem- en/of grondwaterverontreiniging. Dit onderzoek zal dan voor eigen risico en rekening in overleg met de verkoper en/of zijn makelaar uitgevoerd kunnen worden. Koper heeft hier wel / geen gebruik van gemaakt. Tenzij anders is besloten, verklaart koper met het ondertekenen van de koopovereenkomst, dat hij kennis heeft genomen van deze mogelijkheid en van de inhoud van deze clausule. Aangezien de verkoper (onder meer door de makelaar) nadrukkelijk is gewezen op zijn mededelingsplicht, hij naar aanleiding daarvan maximaal heeft verklaard en op basis van deze clausule, komen partijen overeen dat na de levering te ontdekken (ondergrondse tank(s) en/of grond-, bodem- en/of grondwaterverontreiniging voor rekening en risico van koper zijn. Elke aansprakelijkheid van verkoper jegens koper, hoe ook genaamd en onder welke titel dan ook, voor eventuele te ontdekken (ondergrondse tank(s) en/of grond-, bodem- en/of grondwaterverontreiniging van de gehele onroerende zaak wordt uitgesloten. Koper vrijwaart verkoper alsmede de BV, de makelaar(s) en medewerkers van Onkenhout Makelaars van alle aansprakelijkheid ter zake van eventueel (later) te constateren aanwezigheid van ondergrondse tank(s) en/of grond-, bodem- en/of grondwaterverontreiniging. Environmental Clause The environmental clause in our terms and conditions of sale may apply to the sale of this property. If applicable and the seller so desires, the following clause can be included in the purchase agreement. As soon as a prospective buyer becomes a buyer and this clause applies, they declare, by entering into the agreement, that they are aware of this clause. If desired, they can indicate whether or not this clause applies to this property. *In this case, the selection must be crossed out. Environmental Clause The seller declares that no investigation into contamination and possible restrictions on use has been conducted with regard to the soil/groundwater belonging to or forming part of the property sold, unless otherwise stated and possibly described in the sales information under "known details." The seller is not aware of whether the property sold contains or has contained one or more underground tanks intended for the storage of (environmentally harmful) (liquid) substances, unless otherwise stated and possibly described in the sales information under "known details." Regarding the garden and/or surrounding and associated land, the seller further declares that, to the best of their knowledge, there are no restrictions on its use as a garden. If the buyer intends to use the garden partially or entirely as a vegetable garden, the seller cannot guarantee its suitability. If the seller has requested environmental information, this information will be made available to the buyer. Any existing statements issued by municipalities, provinces, or other authorities do not provide complete certainty. Even if, in addition to the seller's duty to provide information, research has already been conducted on behalf of the seller regarding (underground) tanks and/or soil, soil, and/or groundwater contamination, the buyer can still include a condition precedent in their offer for an "own investigation" if they wish to obtain more information about (underground) tanks and/or soil, soil, and/or groundwater contamination. This investigation can then be carried out at their own risk and expense in consultation with the seller and/or their broker. The buyer has/has not made use of this option. Unless otherwise agreed, the buyer declares, by signing the purchase agreement, that they are aware of this option and the content of this clause. Given that the seller (including by the real estate agent) has been explicitly reminded of his duty to disclose, and has declared the maximum amount in response, and based on this clause, the parties agree that any (underground) tank(s) and/or soil, soil, and/or groundwater contamination discovered after delivery will be at the buyer's expense and risk. Any liability of the seller to the buyer, however named and under whatever title, for any (underground) tank(s) and/or soil, soil, and/or groundwater contamination of the entire property is excluded. The buyer indemnifies the seller, as well as the BV, the real estate agent(s), and employees of Onkenhout Makelaars, from all liability relating to any (later) discovery of the presence of underground tank(s) and/or soil, soil, and/or groundwater contamination.04 Asbestclausule / Asbestos clause
Asbestclausule Bij de verkoop van dit object kan de bepaling met betrekking tot de Asbestclausule zoals in onze verkoopvoorwaarden zijn opgenomen van toepassing zijn. Indien van toepassing en door verkoper gewenst kan onderstaande bepaling worden opgenomen in de op te maken koopakte. Zodra een gegadigde, koper wordt en deze bepaling is van toepassing, verklaart hij met het aangaan van de overeenkomst bekend te zijn met deze bepaling. Indien gewenst kan aangegeven worden of deze bepaling is wel of niet van toepassing op dit object *in dit geval dient de keuze doorgehaald te worden Asbestclausule Tenzij in de bijzonderheden ander vermeld, is het verkoper niet bekend dat in/of om het object asbest of asbesthoudende materialen aanwezig zijn of verwerkt zijn. Overigens geeft dit geen volledige zekerheid. Tenzij in de bijzonderheden ander vermeld, kunnen in de onroerende zaak asbesthoudende stoffen/ materialen aanwezig zijn. Indien deze worden verwijderd dienen door koper maatregelen en voorzieningen te worden getroffen die de wetgeving voorschrijft. Koper verklaart met deze wetgeving bekend te zijn en aanvaardt alle aansprakelijkheid en gevolgen die uit de aanwezigheid van asbest en/of de verwijdering van asbest uit de onroerende zaak kan voortvloeien. In afwijking van dit artikel in de nog op te maken koopakte en artikel 7:17 lid 1 en 2 BW komt het geheel of ten dele ontbreken van één of meer eigenschappen van de onroerende zaak voor normaal en bijzonder gebruik en het eventueel anderszins niet-beantwoorden van de zaak aan de overeenkomst als gevolg van de aanwezigheid van enig asbest in welke samenstelling en/of op welke plaats dan ook voor rekening en risico van koper. Bij het vaststellen van de koopsom is hier rekening mee gehouden. Zelfs als er reeds in opdracht van de verkoper in aanvulling op zijn mededelingsplicht onderzoek is gedaan of om, of in het object asbest of asbesthoudende materialen aanwezig zijn of verwerkt zijn, dan nog is het voor koper mogelijk om in zijn bieding een ontbindende voorwaarde voor een "eigen onderzoek" op te nemen, indien koper meer informatie wenst over aanwezige asbest, kan hij in zijn bieding een ontbindende voorwaarde voor een "eigen onderzoek" opnemen. Dit onderzoek zal dan voor eigen risico en rekening in overleg met de verkoper en/of zijn makelaar uitgevoerd kunnen worden. Koper heeft hier wel / geen gebruik van gemaakt. Tenzij anders is besloten, verklaart koper met het ondertekenen van de koopovereenkomst, dat hij kennis heeft genomen van deze mogelijkheid en van de inhoud van deze clausule. Aangezien de verkoper (onder meer door de makelaar) nadrukkelijk is gewezen op zijn mededelingsplicht, hij naar aanleiding daarvan maximaal heeft verklaard en op basis van deze clausule, komen partijen overeen dat de kosten van verwijdering, sanering en/of bijbehorende maatregelen van na de levering te ontdekken asbest of asbesthoudend materiaal voor rekening en risico van koper zijn. Koper vrijwaart verkoper alsmede de BV, de makelaar(s) en medewerkers van Onkenhout Makelaars van alle aansprakelijkheid ter zake van eventueel later te constateren aanwezigheid van asbest, dan wel asbesthoudende materialen. Asbestos Clause The Asbestos Clause, as included in our terms and conditions of sale, may apply to the sale of this property. If applicable and the seller so desires, the following provision can be included in the purchase agreement. As soon as a prospective buyer becomes a buyer and this provision applies, they declare, by entering into the agreement, that they are aware of this provision. If desired, you can indicate whether or not this provision applies to this property. *In this case, the selection should be crossed out. Asbestos Clause Unless otherwise stated in the particulars, the seller is not aware that asbestos or asbestos-containing materials are present or have been used in/around the property. However, this does not provide complete certainty. Unless otherwise stated in the particulars, asbestos-containing substances/materials may be present in the property. If these are removed, the buyer must take the measures and provisions prescribed by law. The buyer declares that he/she is familiar with this legislation and accepts all liability and consequences that may arise from the presence of asbestos and/or its removal from the property. Notwithstanding this article in the purchase agreement yet to be drawn up and Article 7:17, paragraphs 1 and 2 of the Dutch Civil Code, the total or partial absence of one or more features of the property for normal and special use, and any other failure of the property to comply with the agreement, as a result of the presence of any asbestos in any composition and/or in any location whatsoever, shall be at the buyer's expense and risk. This has been taken into account when determining the purchase price. Even if, in addition to the seller's duty of disclosure, an investigation has already been conducted on the seller's behalf to determine whether asbestos or asbestos-containing materials are present or incorporated in the property, the buyer may still include a condition precedent for a "personal investigation" in their offer. If the buyer wishes more information about the presence of asbestos, they may include a condition precedent for a "personal investigation" in their offer. This inspection can then be carried out at the seller's own risk and expense in consultation with the seller and/or their real estate agent. The buyer has/has not made use of this option. Unless otherwise agreed, the buyer declares, by signing the purchase agreement, that they are aware of this option and the content of this clause. Since the seller (including by the real estate agent) has been explicitly reminded of their duty to disclose, and has declared their liability to the maximum extent necessary in response, and based on this clause, the parties agree that the costs of removal, remediation, and/or associated measures for any asbestos or asbestos-containing materials discovered after delivery shall be borne and at the buyer's risk. The buyer indemnifies the seller, as well as the BV, the real estate agent(s), and employees of Onkenhout Makelaars, from all liability relating to any subsequent discovery of asbestos or asbestos-containing materials.05 Toelichtingsclausule Meetinstructie / Measurement Instruction Explanation Clause
Toelichtingsclausule Meetinstructie Bij de verkoop van dit object kan de bepaling met betrekking tot de Toelichtingsclausule Meetinstructie zoals in onze verkoopvoorwaarden zijn opgenomen van toepassing zijn. Indien van toepassing en door verkoper gewenst kan onderstaande bepaling worden opgenomen in de op te maken koopakte. Zodra een gegadigde, koper wordt en deze bepaling is van toepassing, verklaart hij met het aangaan van de overeenkomst bekend te zijn met deze bepaling. Indien gewenst kan aangegeven worden of deze bepaling is wel of niet van toepassing op dit object *in dit geval dient de keuze doorgehaald te worden Toelichtingsclausule Meetinstructie De makelaar heeft (via en namens zijn verkoper) de NEN-2580 meting uitbesteed aan een externe, professionele en gespecialiseerde partij en hiermee beoogd de koper zo goed als mogelijk te informeren over de juiste maten van het object. Desalniettemin zijn de (eventuele maten in de) plattegronden slechts een indicatie van de werkelijkheid en kunnen afwijken van de feitelijke situatie. De woning is opgemeten conform de branchebrede meetinstructie. De Meetinstructie is gebaseerd op de NEN2580. De Meetinstructie is bedoeld om een meer eenduidige manier van meten toe te passen voor het geven van een indicatie van de gebruiksoppervlakte. De Meetinstructie sluit verschillen in meetuitkomsten niet volledig uit, door bijvoorbeeld interpretatieverschillen, afrondingen of beperkingen bij het uitvoeren van de meting. Indien koper wenst, kan hij in zijn bieding een ontbindende voorwaarde voor een "eigen" NEN-2580 meting opnemen. Deze meting zal dan voor eigen risico en rekening in overleg met de verkoper en/of zijn makelaar uitgevoerd kunnen worden. Tenzij anders is besloten, verklaart koper met het ondertekenen van de koopovereenkomst, dat hij kennis heeft genomen van deze mogelijkheid en van de inhoud van deze clausule en dat hij door de verkoper in de gelegenheid is gesteld het gebruiksoppervlak en de inhoud zelf na te (laten) meten, van welke gelegenheid koper GEEN gebruik heeft gemaakt. Op basis van deze Toelichtingsclausule komen partijen overeen dat na de levering te ontdekken afwijkingen in de maten voor rekening en risico van koper zijn. Koper vrijwaart verkoper alsmede de BV, de makelaar(s) en medewerkers van Onkenhout Makelaars van alle aansprakelijkheid ter zake van eventueel later te constateren verschillen in maatvoering van zowel gebruiksoppervlakte als inhoud van de woning. Measurement Instruction Explanation Clause The provision regarding the Measurement Instruction Explanation Clause, as included in our terms and conditions of sale, may apply to the sale of this property. If applicable and at the seller's request, the following provision can be included in the purchase agreement. As soon as a prospective buyer becomes a buyer and this provision applies, they declare, by entering into the agreement, that they are familiar with this provision. If desired, you can indicate whether or not this provision applies to this property. *In this case, the selection should be crossed out. Measurement Instruction Explanation Clause The real estate agent (through and on behalf of the seller) has outsourced the NEN-2580 measurement to an external, professional, and specialized party, with the aim of informing the buyer as accurately as possible about the property's dimensions. Nevertheless, the (any dimensions in the) floor plans are merely an indication of reality and may differ from the actual situation. The property has been measured in accordance with industry-wide measurement instructions. The Measurement Instructions are based on the NEN2580 standard. The Measurement Instructions are intended to provide a more consistent measurement method for providing an indication of the usable area. The Measurement Instructions do not completely eliminate differences in measurement results, for example, due to interpretation differences, rounding, or limitations in the measurement process. If the buyer wishes, they can include a condition precedent in their offer for their own NEN-2580 measurement. This measurement can then be performed at the buyer's own risk and expense in consultation with the seller and/or their real estate agent. Unless otherwise agreed, by signing the purchase agreement, the buyer declares that they are aware of this option and the content of this clause, and that the seller has given them the opportunity to measure the usable area and volume themselves (or have it measured), an opportunity which the buyer has NOT taken advantage of. Based on this Explanatory Clause, the parties agree that any deviations in measurements discovered after delivery are at the buyer's expense and risk. The buyer indemnifies the seller, as well as the BV, the broker(s) and employees of Onkenhout Makelaars, from all liability in respect of any differences in the dimensions of both the usable surface area and the volume of the home that may subsequently be discovered.
Badhoevedorp
Badhoevedorp is een dorp in de gemeente Haarlemmermeer in de Nederlandse provincie Noord-Holland met in 2019 12.650 inwoners. Het dorp wordt door de ringvaart gescheiden van het oude dorp Sloten, sinds 1921 deel van de gemeente Amsterdam. De Sloterbrug verbindt sinds 1879 beide dorpen met elkaar. Voorts zijn er de Oude Haagsebrug en de Lijnderbrug die een verbinding vormen met Amsterdam-Nieuw-West. Langs de ringvaart komt men in het noordwesten over de Akerdijk bij het dorp Lijnden, in het zuidoosten over de Nieuwemeerdijk bij de buurtschap Nieuwe Meer.
Badhoevedorp is genoemd naar de modelboerderij de Badhoeve van Jacob Paulus Amersfoordt, burgemeester van Haarlemmermeer. Deze in 1854 gebouwde boerderij was weer vernoemd naar een strandje aan het destijds Haarlemmermeer op de plek waar later het niet meer bestaande Akerbad stond in Sloten waar een badgelegenheid was. Deze boerderij trok al spoedig na de bouw de aandacht vanwege de revolutionaire landbouwmethoden. Onder andere koningin Sophia heeft de boerderij nog bezocht.
Aanvankelijk was Badhoevedorp niet veel meer dan een paar huizen om de modelboerderij “de Badhoeve” aan de ringdijk van de Haarlemmermeer, maar vanaf de jaren ’30 werd het dorp uitgebreid als tuindorp bij Amsterdam. Zo kon aan de werknemers van het nabijgelegen Schiphol huisvesting worden geboden. De nieuwe bevolking was voor de overgrote meerderheid afkomstig uit de stad. Dit, en de nabijheid van Amsterdam, zullen de oorzaak zijn dat Badhoevedorpers zich ook nu nog meer verbonden voelen met de stad dan met Haarlemmermeer. Van eind jaren dertig tot begin jaren zeventig was het dorp het grootste van de Haarlemmermeer.
In 1936 werd de naam van het dorp officieel door de Haarlemmermeerse gemeenteraad vastgesteld als Badhoevedorp. Voor die tijd stond het bekend als Badhoevebuurt.
De oorspronkelijke modelboerderij de Badhoeve werd in 1990/’91 gesloopt.
Badhoevedorp is gelegen in de gemeente Haarlemmermeer en is grenzend aan de westzijde van Amsterdam. Badhoevedorp is gelegen in de voormalige Haarlemmermeer polder, welke halverwege de negentiende eeuw definitief werd drooggelegd. Vanaf die tijd draaide de economie veelal om de agrarische sector.
Na de tweede wereldoorlog veranderde dat al vrij snel. Schiphol groeide door tot een belangrijke luchthaven en een belangrijke werkgever. Hierdoor ontstond een explosieve uitbreiding van economische activiteiten rondom Schiphol. Een groot gedeelte van de meer dan 11.000 inwoners van Badhoevedorp, werken dan ook in deze regio en wonen tevreden dicht bij, hebben er het gemak van, zonder dat de vliegtuigen over het dorp vliegen.
Wijken
Badhoevedorp omvat de volgende wijken: Bouwlust, Noordwest, Zuid-centrum, en Noordoost. Deze namen zijn niet bij de bewoners bekend. Er zijn informele wijknamen die wat gangbaarder zijn, zoals het Groene Dakendorp, alwaar de dure villa’s inderdaad groene daken hebben, en de Vogelbuurt, alwaar de straten naar bekende vliegtuigen van de KLM uit de jaren dertig vernoemd zijn (en die waren op hun beurt weer naar vogels vernoemd).
Verkeer en vervoer
Van 8 augustus 1967 tot 10 april 2017 liep de autosnelweg A9 dwars door het dorp. Na jaren plannen om deze rijksweg ten zuiden van Badhoevedorp om te leggen werd deze wijziging definitief na een besluit in de gemeenteraad van Haarlemmermeer op 20 oktober 2005. Na een in 2007 begonnen inspraakronde werd op 24 april 2012 het definitieve tracébesluit getekend door verkeersminister Schultz van Haegen. Eind 2012 deed de Raad van State uitspraak over eventueel ingesteld beroep. In het najaar van 2013 werd een start gemaakt met de bouw.
Op 17 en 19 december 2016 werd de nieuwe rijbaan in de richting Amstelveen (linkerrijbaan) in gebruik genomen. In april 2017 volgde de omlegging in de richting Haarlem (rechterrijbaan). Op 10 april 2017 reed de laatste auto de andere kant op. Aansluitend hierop voorziet het ‘Masterplan Badhoevedorp in de bouw van nieuwe woningen op de plaats van de oude snelweg.
Aan de zuidoostkant van Badhoevedorp kruisen autosnelwegen A9 en A4 bij het knooppunt Badhoevedorp. Langs Badhoevedorp loopt tevens de provinciale weg N232, lokaal beter bekend als de Schipholweg.
Langs het dorp loopt een spoorlijn maar deze heeft er geen station. Connexxion buslijnen 192 en 195 doen het dorp wel aan. Buslijn 194 van het Schipholnet en 356 van R-net hebben langs de rand van het dorp een halte.
Industrie en nijverheid
Badhoevedorp kent twee grote industrieterreinen, waar vooral bedrijven gevestigd zijn en geen fabrieken: de Jan van Gentstraat en het industrieterrein aan de Schipholweg. Het winkelcentrum van Badhoevedorp bevindt zich aan de Sloterweg en het Lorentzplein.
Scholen
Badhoevedorp heeft tegenwoordig enkel basisscholen, te weten de:
- Burgemeester Amersfoordtschool (openbaar),
- G.Th. Rietveldschool (Daltononderwijs),
- Dr. Plesmanschool (rooms-katholiek), vroeger de Sint Jozefschool geheten.
- Oranje-Nassauschool (protestants-christelijk).
In het dorp was ook bloeiend voortgezet onderwijs, met het openbare Haarlemmermeer Lyceum en de christelijke Oranje Nassau School. De eerste vestiging van het lyceum was in Badhoevedorp, met docenten als Henriëtte Boas en leerlingen als Bas Heijne. Later kwam er er een tweede vestiging in Hoofddorp, nadat deze door de gemeente tot hoofdvestiging was verklaard werd het lyceum in Badhoevedorp in 1985, ondanks het hoge leerlingenaantal, gesloten. Voor het vervolgonderwijs zijn de scholieren uit het dorp sindsdien aangewezen op Amsterdam, Haarlem, Hoofddorp of Amstelveen.
Kerken
Badhoevedorp heeft twee kerken: de rooms-katholieke HH. Engelbewaarderskerk en de Pelgrimskerk behorend aan de gemeente Badhoevedorp/Lijnden van de Protestantse Kerk in Nederland. De Pelgrimskerk is de voormalige Gereformeerde Kerk. De hervormde Immanuelkerk heeft begin 21e eeuw moeten wijken voor appartementen.
Sport
In Badhoevedorp zijn verschillende sportverenigingen actief. Dit zijn:
R.K.S.V. Pancratius (voetbal)
SC Badhoevedorp (voetbal, honkbal, softbal)
Kombij Sport (volleybal, atletiek, tafeltennis)
TV Badhoevedorp (tennis)
KV Badhoevedorp (korfbal)
ZV de Waterwolf (zwemsport, waterpolo, duiken)
BC Badhoevedorp (badminton)
Kringroep den Aemstelle (hondensport)
Badhoevese Bridgeclub (kaarten)
Net over de brug van Badhoevedorp in Amsterdam-Sloten is hockeyclub Xenios
Scoutinggroepen
Buiten de sportverenigingen telt Badhoevedorp ook twee scoutinggroepen, te weten:
Leeghwatergroep (waterscouting)
Lady Baden Powell (landscouting voor meisjes)
Conclusie
Deze charmante woning ligt op goede afstand van het centrum, waar diverse leuke winkels van hoge kwaliteit en met nog echte service en kennis zich bevinden. Het dorp heeft drie supermarkten en twee banken en een openbare bibliotheek. Er zijn goede gerenommeerde scholen, diverse sport- en recreatievoorzieningen, ouderenvoorzieningen, speelvoorzieningen en veel groen.
Kortom een prettige leefomgeving dicht bij het centrum van Amsterdam, Haarlem of Hoofddorp, nabij het Amsterdamse bos en aan het water van de ringvaart en de Nieuwe Meer.
Badhoevedorp heerlijk om te wonen.
Bron: Wikipedia

































































































































































